ТОПИММО предлага за продажба тристаен апартамент на търговска улица в центъра на град Варна. Районът е много оживен и разполага с всички комуникации, различни видове магазини и заведения.
Апартаментът разполага със самостоятелен вход директно от улицата. Жилището е с функционално разпределение. Кухнята е с отделен вход като самостоятелна бокс-стая.
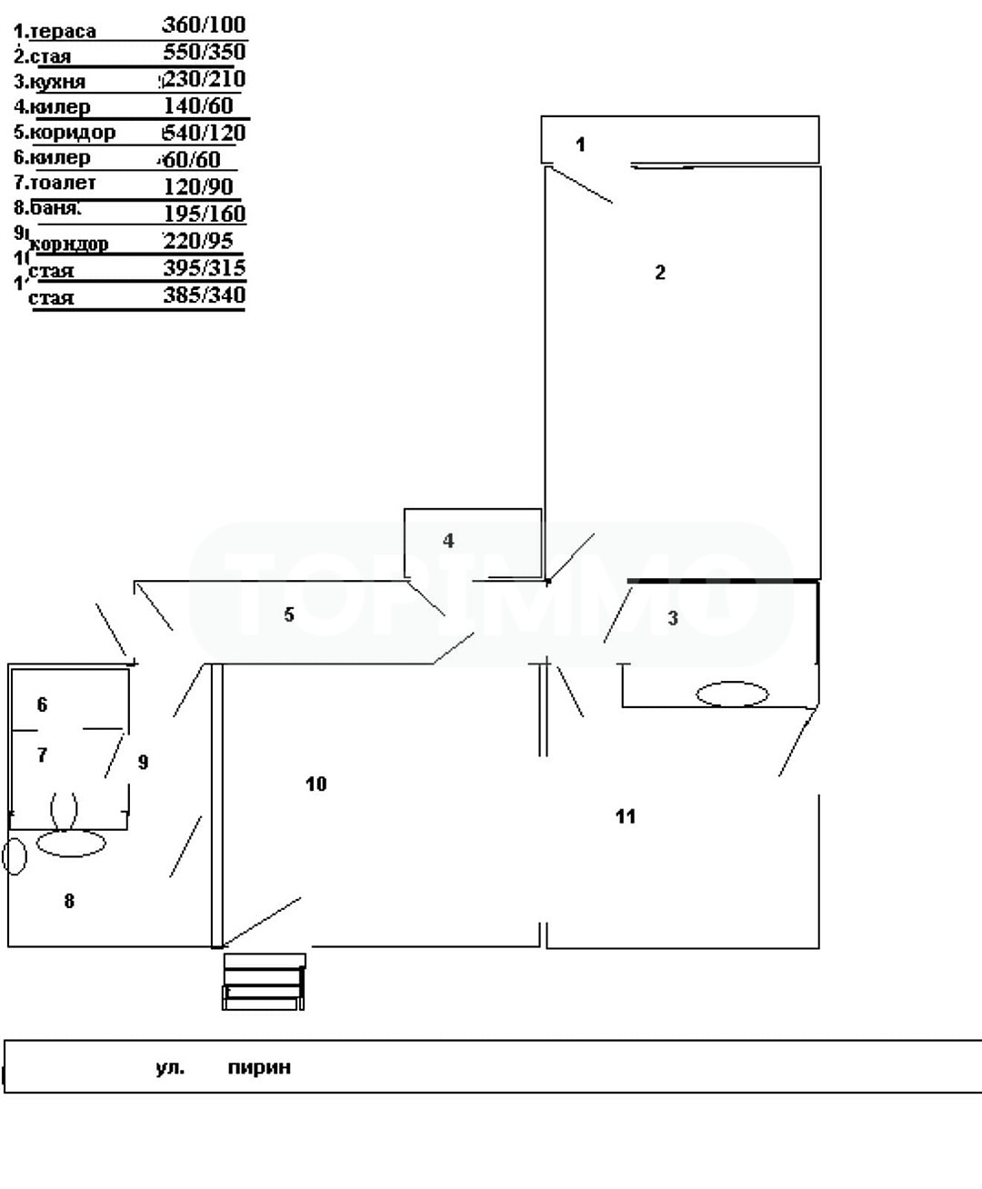
Разпределение: коридор, кухненски бокс 5 кв.м, дневна 19 кв.м, 2 спални 12 и 13 кв.м, баня с тоалетна, отделно тоалетна ( санитарните помещения са с отделен коридор ). 2 килера, тераса към дневната, мазе 13 кв.м.
Статутът на имота е променен на магазин, понастоящем се ползва като офис. Може да се смени отново на апартамент.
Подходящ е за лекарски и стоматологичен кабинет, адвокатска кантора, студио за красота. Може да се ползва и за магазин.
Можем да организираме оглед в удобно за вас време, свържете се с нас! Референтен номер: RM-4452







