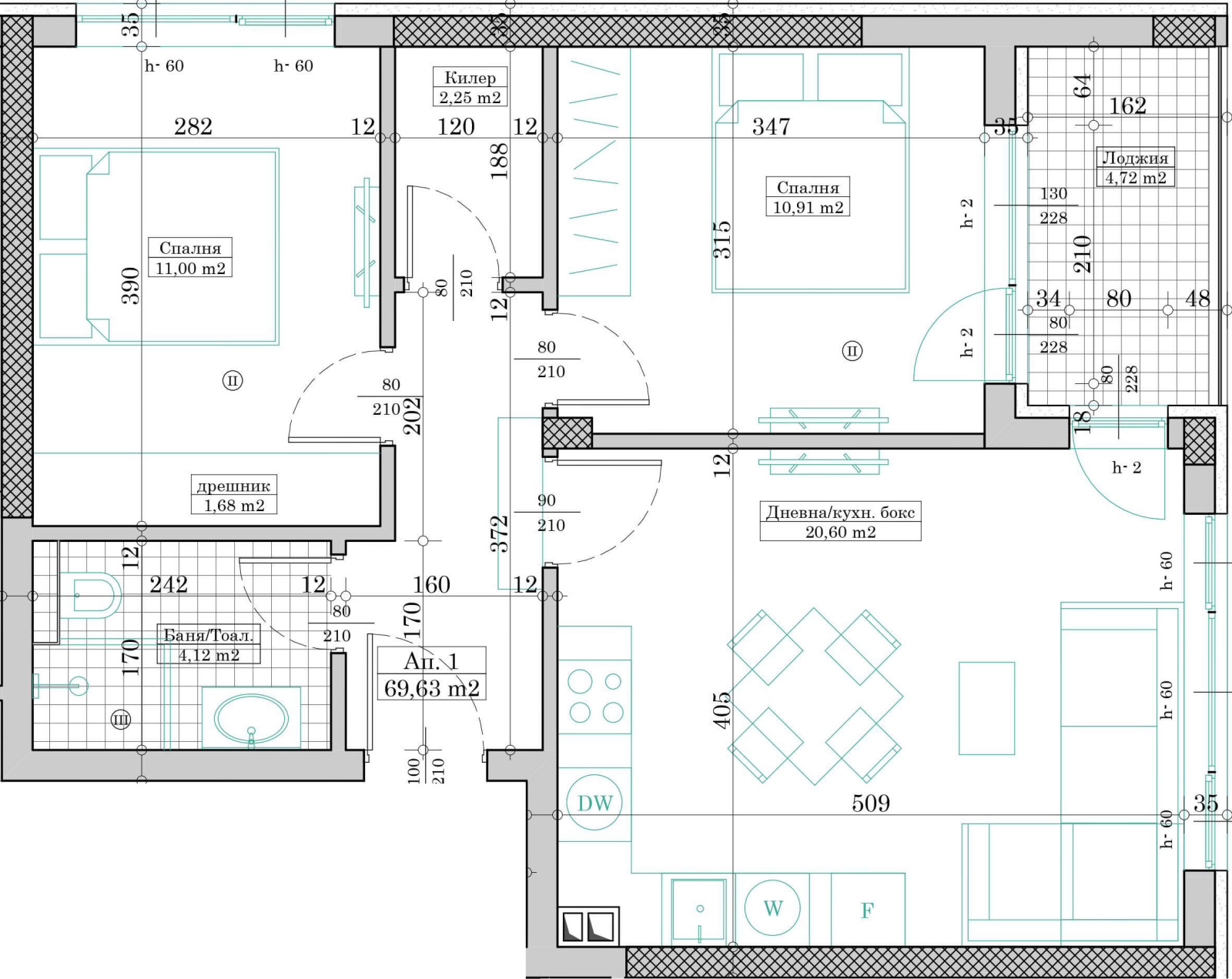
Представяме ви уникален тристаен апартамент, разположен в сърцето на Кайсиева Градина, Варна. Със своите 81 квадратни метра, имотът предлага просторни и светли помещения, които са идеални за комфортен живот. Апартаментът е проектиран с внимание към детайла и предлага всичко необходимо за съвременния начин на живот.
Имотът е на втори етаж в девететажна сграда, с тухлена конструкция, която осигурява отлична изолация и дълготрайност. Състоянието на имота е БДС, което дава възможност на новите собственици да го завършат по свой вкус. Апартаментът разполага с две спални, една баня и тоалетна, както и с просторна дневна, която е идеална за семейни събирания. Изложението на имота е изток, което осигурява приятно осветление през целия ден.
Сред предимствата на този имот са наличието на асансьор, охрана, видеонаблюдение и контролиран достъп, които гарантират сигурността на обитателите. В близост до сградата се намират магазини, училища, детски градини, болници и аптеки, което прави района изключително удобен за семейства. Градският транспорт е на разположение, което осигурява бърз достъп до централната част на Варна.
Техническите спецификации на имота включват отопление с климатик и енергийна ефективност клас А+, което е изключително важно за намаляване на разходите за енергия. Осигурено е и паркиране в гараж, което е рядкост в градска среда. Годината на строителство е 2026, а завършването на сградата е планирано за 2028 година, което означава, че имотът е в процес на изграждане и ще бъде готов за новите си собственици в близко бъдеще.
В заключение, този тристаен апартамент в Кайсиева Градина е отличен избор за тези, които търсят модерен и удобен дом в един от най-предпочитаните райони на Варна. Със своите множество предимства и удобства, той предлага всичко необходимо за комфортен и спокоен живот.







