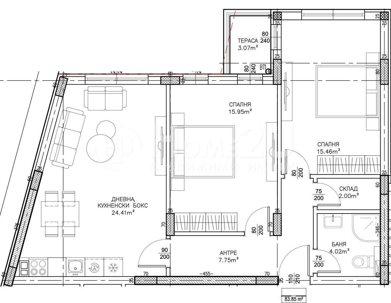
АКТ-16 ДО КРАЯ НА ГОДИНАТА !!! ВЪЗМОЖНОСТ ЗА КРЕДИТИРАНЕ !!! КОМУНИКАТИВНА ЛОКАЦИЯ !!! Представяме Ви слънчев тристаен апартамент, с югозападно изложение в сграда с АКТ 14 и вече издадено удостоверение по чл.181 за груб строеж, и срок на завършване /АКТ 16/ края на 2025г. Сградата е разположена в перспективен район, осигуряващ бърз и лесен достъп до бул. Симеоновско шосе, Околовръстен път. В близост до сградата има големи вериги хранителни магазини и ще бъде изградена бъдеща метростанция. Имота е със следното функционално разпределение: входно антре, дневна и кухненски бокс, спалня, втора спалня с тераса, баня с тоалетна и склад, който може да стане втора тоалетна. Сградата ще бъде завършена с качествени материали, съобразени с последните стандарти на новото строителство, френски прозорци осигуряващи много естествена светлина и др. Към имота се предлага и вече изготвен интериорен проект и има опция за покупка на външно паркомясто в двора на сградата на цена от 15 000 евро.
За ваше улеснение прилагаме схема на разпределение на имота. Обади се сега и цитирай този код: 130366







