250 м. до НБУ
С АКТ 16 от 2024г., на шпакловка и замазка.
Етаж минус едно, поради денивелация, има и изглед във вътрешен двор.
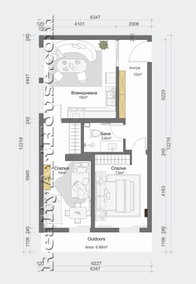
Застроена площ на имота: 72,40 кв.м., заедно с общите части на сграда: 86,60 кв.м.
Разпределение: стая, работно помещение, склад, коридор и санитарен възел.
Може да бъде преустроен:
- в тристаен (има съответни чертежи към офертата).
- апартамент с преходен хол и три отделни равноценни стаи (спални), което от гледна точка на близост до НБУ (250 метра) може да направи имот с голям инвестиционен потенциал.
Два прозореца в работна стая изглеждат в английски двор, другите два прозореца в холна стая изглеждат в прекрасен вътрешен озеленен двор с малка денивелация.
Предвидена газификация.
Близо до спирки на автобуси 73, 59, 60. 15 минути пеша до метростанция Мизия, 7 минути пеша до Супермаркет.
ОФЕРТА 0489 в агенция www.realtyarthouse.com
Ключ в агенция.
Информация и огледи: Лариса Николаева +359 87 757 24 21.
Виж всички обяви в interarthouse.bazar.bg или тук
        
       
         
         
         
         
         
         
         
         
         
             
             
             
             
             
             
             
             
            