НОВ ЖИЛИЩЕН ПРОЕКТ В КВ. ЛЕВСКИ ПРЕД РАЗРЕШЕНИЕ ЗА СТРОЕЖ
Представяме Ви новострояща се жилищна сграда кв. Левски, на ул. Летоструй. Проектът е на етап пред издаване на Разрешение за строеж, с очакван старт в началото на годината.
Сградата е проектирана с осем надземни етажа и ще включва 21 функционално разпределени апартамента двустайни и тристайни жилища, подходящи както за собствено ползване, така и за инвестиция.
Архитектурното решение залага на съвременна визия, висок клас материали и комфортна градска среда. За удобство на бъдещите обитатели са предвидени паркоместа и гаражи.
Основни предимства:
Отлична локация с бърз достъп до центъра и Околовръстен път
Малка, бутикова сграда с ограничен брой апартаменти
Функционални разпределения и естествена светлина
Възможност за избор на етаж и изложения
В момента се приемат резервационни депозити
Конкурентни цени на етап пред строеж
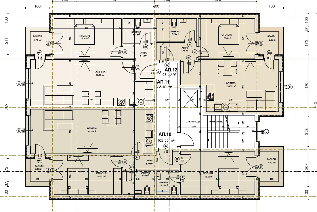
Предлаганият от нас имот е тристаен апартамент 10, намира се на пети жилищен етаж, с двустранно изложение изток- запад.
- 102.55 кв.м. чиста площ, с общи части 119.54кв.м., като дневната е с чиста площ 31.23 кв.м., просторна родителска спалня със собствена баня с площ 21.91 кв.м., втора спалня 15.31, баня с тоалетна 4.56 кв.м.,, антре 4.79 кв.м., два балкона.
Оферта 3304610







