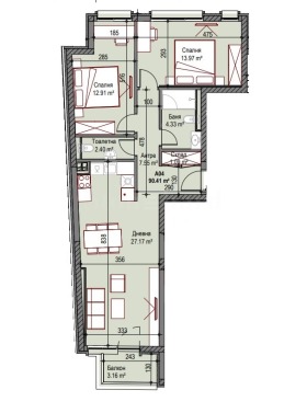
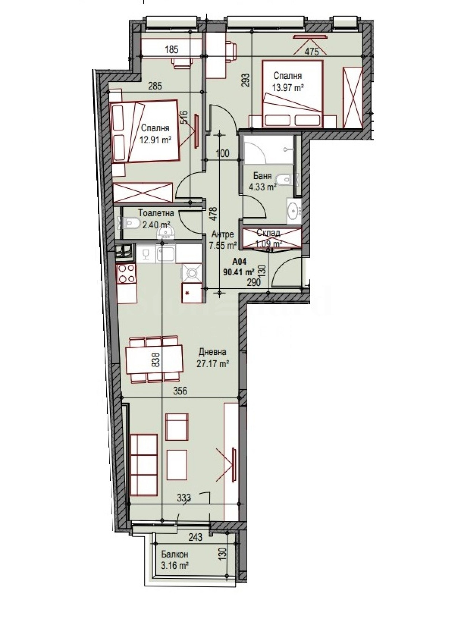
Представяме тристаен апартамент за продажба в нова сграда с модерна визия в кв. 'Сухата река', гр. София.
Имотът е разположен на 8-ми етаж и предлага 108.49 кв.м, разпределена в антре, всекидневна, две спални, баня с тоалетна, тоалетна и балкон.
Местоположението е в близост до до спирки на градски транспорт и метростанция 'Хаджи Димитър', супермаркети, училища и детски градина. Районът се обслужва от ул. 'Черковна', ул. 'Александър Екзарх' и булевардите 'Владимир Вазов' и 'Ген. Данаил Николаев', чрез които се осъществява връзката с всички части на града. Мол 'Сердика' е на отстояние 5 минути с автомобил или 10 минути пешеходно разстояние, а парк 'Заимов', разположен в престижния квартал 'Оборище', е на 18 минути пешеходно разстояние.
Покупка без комисиона.
Сградата е на 9 етажа, разпределена в два входа и предлага избор от двустайни, тристайни и четиристайни апартаменти, проектирани по европейски стандарти с усещането за много простор и слънчева светлина.
Паркирането е решено с паркоместа и гаражи, разпределени на ниво партер и сутерен:
паркоместа на цени от EUR 20 000;
гаражи на цени EUR 30 000 - EUR 40 000.
В строителството са заложени модерни технологии и съвременни материали за постигане на ниски енергийни разходи и създаване на висок стандарт, уют и спокойствие на живущите в комплекса. Архитектурният дизайн е модерен, с фасада от полимерна мазилка и естествен камък, а общите части ще бъдат луксозно изпълнени с гранит, ламперия и хидравличен асансьор. Предвидено е фасадно LED осветление и декоративно градинско осветление, което да очертае парцела и зелените площи.
Характеристики:
ограждащи и преградни тухлени стени с висококачествените тухли Wienerberger;
сградите са топлоизолирани с 10 см EPS изолация, а покривите са топлоизолирани с XPS изолация 10 см и двойна хидроизолация;
всички тераси са хидроизолирани;
6-камерна ...
За повече информация свържете се с нас и цитирайте референтния номер на имота. Моля, кажете, че сте видeли обявата в този сайт.
Референтен номер: Sve-110288
Тел: +359 889 007 010
Моб: +359 877 777 888 (WhatsApp, Viber, SMS)
Отговорен брокер:Стоунхард ПРЕМИЪР
Без комисиона от купувача
Виж всички обяви в stonehard.bazar.bg или тук







