БИЛДИНГ БОКС Предлага тристаен апартамент в Кръстова вада! Ексклузивна локация и качество!
Имотът се намира на етаж 4 от общо 15, като е изключително подходящ за живеене, поради чудесното разпределение на пространства в имота, апартаментът се намира в сграда с качество на строителство клас ,,А' и акт 16 от 2023 г.
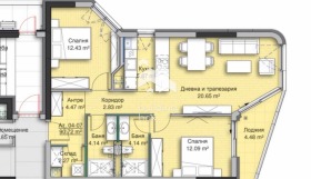
Имотът е с много добро разпределение, със застроена площ от 91 кв.м.
Състои се от дневна с кухнeнски бокс и трапезария, 2 спални като към едната има баня с тоалетна, втора баня с тоалетна, лоджия, коридор и мокро помещение, където се намира термопомпата за подовото отопление и пералня със сушилня. Впечатляващо обзавеждане и невероятна гледка към Витоша.
Изложението на апартамента е югозападно.
Има вградено водно подово отопление, както и вградена климатична система - не се виждат външни тела на климатици.
Към апартамента може да се закупи паркомясто или гараж директно от инвеститора.
Сградата разполага с дограма от най-висок клас SCHUCO, допълнително звукоизолирани вътрешни стени между апартаментите POROTHERM и алуминиева фасада с термоизолационни функции.
Безопасността е решена с 24-часово видеонаблюдение и охранител.
Отличава се с отлична локация, само на 15 минути пеша от мол 'Парадайс' и Южен парк, има и бърз излаз до бул. Черни връх и Околовръстен път, бъдеща метростанция, Фантастико' и 'Лидл'.
Тази част на квартал Кръстова вада се отличава с високото качество на строителство.
БИЛДИНГ БОКС предоставя безплатна консултация и съдействие при финансиране на избрания от Вас имот.
Оферта 26580







