Представяме тристаен апартамент с веранда в нов жилищен комплекс, който се изгражда с фокус към високото качество на строителство и здравословната жилищна среда в хармония с природата.
Комплексът се намира в предпочитания кв. 'Манастирски ливади - Изток', в близост до основните пътни артерии бул. 'България' и бул. 'Тодор Каблешков', както и с лесен достъп до Южен парк и Bulgaria Mall. Районът се отличава с чист въздух и прекрасни изгледи към Витоша, като разполага с четири детски градини, частна детска кухня, две училища с изучаване на чужди езици, хранителни магазини, офиси на спедиторски дружества. В близост до комплекса е планирано изграждане на 27 декара линеен парк.
В активен процес на строителство. Очаквано завършване - ноември 2026 г.
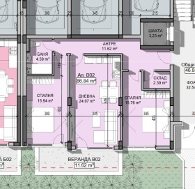
Апартаментът е ситуиран на ниво партер и предлага 100.53 кв.м обща площ. Състои се от антре, всекидневна с кухня и трапезария, две спални, баня, веранда.
Има възможност за закупуване на подземни паркоместа и гаражи.
В строителството е заложено на нисък процент общи части, висок клас материали и модерна архитектурна визия. Фасадата е с изчистени линии, комбинация от травертин и дърво, и френски прозорци, които не само гарантират изобилие от естествена светлина, но и откриват гледки към Витоша и зелените площи около комплекса. На разположение на собствениците ще има богато озеленен двор с алеи за разходки и места за отдих, оформени с висока и ниска растителност и 90 м река, както и ограничен достъп за повече сигурност и спокойствие. Паркирането е решено с подземни паркоместа.
Имотите в комплекса са проектирани с мисъл за удобството и комфорта на своите обитатели. Налични за продажба са двустайни и тристайни апартаменти, всеки с просторни и слънчеви помещения с големи френски прозорци, а в пода има възможност да се изгради система за водно подово отопление и охлаждане. Имотите се предлагат в степен на ...
За повече информация свържете се с нас и цитирайте референтния номер на имота. Моля, кажете, че сте видeли обявата в този сайт.
Референтен номер: SOF 125704
Тел: +359 889 007 010
Моб: +359 877 777 888 (WhatsApp, Viber, SMS)
Отговорен брокер:Стоунхард ПРЕМИЪР
Без комисиона от купувача
Виж всички обяви в stonehard.bazar.bg или тук







