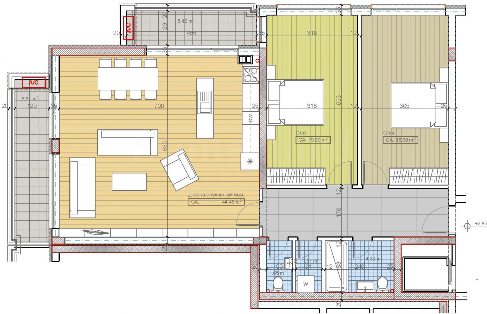
Представяме тристаен апартамент, простиращ се на 153.97 кв.м за продажба, в нова, модерна сграда на удобна локация на 250 метра от Околовръстен път, в близост до бул. 'Цар Борис ' в м-т Гърдова глава в София.
С получен Акт 14! Планиран Акт 16 - декември 2025 г.
Комплексът е разположен на спокойно и тихо място с чист въздух, в зеления столичен район, в близост до училище и детска градина, хипермаркети Фантастико и Lidl.
Параметри на жилището
Апартаментът е разположен на 2-ри етаж, като изложението е юг/запад.
Жилището се състои от:
антре;
дневна с кухня и трепезария;
две спални;
баня;
тоалетна;
две тераси. Застроената площ на имота е 129.59 кв.м, като към жилището има и склад със светла площ 4.16 кв.м.
За сградата
Сградата с РЗП 4 200 кв.м е проектирана от 5 надземни жилищни и един полуподземен етаж, състои се от два входа с общо 35 бр. имоти. Имотите за продажба са от тип едностайни, двустайни и тристайни жилища, с комфортни разпределения.
Паркирането е решено с 15 надземни гаража и 20 паркоместа в дворното място.
В строителството на сградата са заложени качествени материали и техники.
Сградата е газифицирана.
Апартаментите се продават по БДС, на шпакловка и замазка.
Технически характеристики:
стоманобетонна конструкция, с водоплътен бетон клас С 25/30 (бетонът е над изисквания по проект, за много високи сгради);
зидария с тухли Wienerberger;
с изцяло окачена вентилируема фасада: стъклокерамика, HPL и еталбонд, по разработен дизайнерски проект;
дограма - модел GENEO, REHAU, от композитен материал 86 мм, с троен стъклопакет, цвят антрацит (тъмносив);
общи части - с гранит на пода, стени с елементи от гранит, HPL и еталбонд;
8-местни асансьори OTIS;
входни врати на апартаментите - поръчкови, метални, блиндирани и с топлоизолация;
гаражни врати - автоматични, секционни, топлоизолирани и с дистанционно ...
За повече информация свържете се с нас и цитирайте референтния номер на имота. Моля, кажете, че сте видeли обявата в този сайт.
Референтен номер: SOF-126234
Тел: +359 889 007 010
Моб: +359 877 777 888 (WhatsApp, Viber, SMS)
Отговорен брокер:Стоунхард ПРЕМИЪР
Без комисиона от купувача
Виж всички обяви в stonehard.bazar.bg или тук
        
       
         
         
         
         
         
         
         
         
         
         
         
         
         
         
         
         
         
             
             
             
             
             
             
             
             
             
             
             
             
             
             
             
             
            






