С разрешение за строеж! Планиран старт на строителството - януари 2025 г. Планирано завършване - в края на 2027 г.
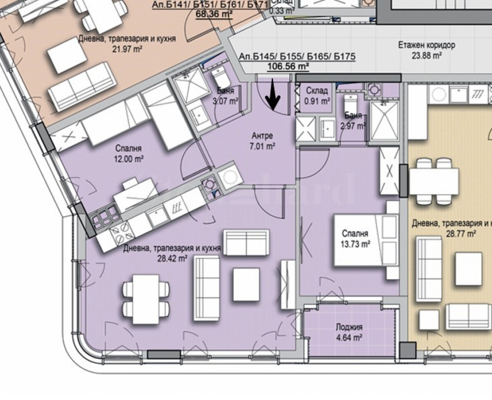
Представяме тристаен апартамент от 106.56 кв.м за продажба, в нов, модерен и иновативен комплекс на топ локация в един от най-предпочитаните и динамично развиващи се райони на София - кв. 'Витоша'.
Комплексът е стратегически позициониран, предоставяйки лесен достъп до центъра на града, като същевременно предлага уединение и комфорт благодарение на близостта си до Ловния парк, Зоопарка и планината Витоша. Намира се между булевардите 'Симеоновско шосе' и 'Филип Кутев', с бърз достъп до основните транспортни артерии на столицата. Районът предлага отлична инфраструктура с удобни автобусни връзки, детски градини и училища.
Имотът е разположен на 16-и етаж от общо 18 в Сграда 'Б' и има благоприятно изложение на юг-запад, с впечатляваща панорама към града и Витоша. Предлага се в степен на завършеност по БДС.
Разпределение:
антре, склад, баня/тоалетна;
дневна с кухня и трапезария - 28.42 кв.м;
спалня-1 от 13.73 кв.м, с баня - 2.97 кв.м;
спалня-2 - 12 кв.м;
тераса тип лоджия с излаз от дневната и спалня-1. ПРОМО СХЕМА НА ПЛАЩАНЕ:
20% на Предварителен договор;
80% на Акт 16. Цена без ДДС. Без комисиона от купувача!
Комплексът разполага със 153 паркоместа и 12 гаража за автомобили в подземните нива. Предвидени са и зони с места за велосипеди.
Има възможност за закупуването на паркоместа и гаражи, на цени от 34 000 без ДДС.
Концепция и удобства
Комплексът се състои от две хармонично допълващи се сгради - 'А' (8 етажа) и 'Б' (18 етажа), обединени от обширно зелено пространство, и в симбиоза с атрактивната локация до парка ще предоставя на обитателите си и собствен двор ...
Цената на имота е 326 000 евро / 637 600.58 лв. без ДДС или 391 200 евро / 765 120.70 лв. с ДДС. Данъчен кредит може да се ползва при определени условия.
За повече информация свържете се с нас и цитирайте референтния номер на имота. Моля, кажете, че сте видeли обявата в този сайт.
Референтен номер: SOF-127495
Тел: +359 889 007 010
Моб: +359 877 777 888 (WhatsApp, Viber, SMS)
Отговорен брокер:Стоунхард ПРЕМИЪР
Без комисиона от купувача
Виж всички обяви в stonehard.bazar.bg или тук







