Представяме апартамент в комплекс ново строителство в бързо развиващия се квартал Младост 4 . Комплексът е с удобно местоположение, близо до Бизнес Парк София, метростанция 'Бизнес парк', МВР академия, Икея и София Ринг Мол. От комплекса има бърз и лесен достъп до бул. Александър Малинов и Околовръстен път.
В района има всички удобства като магазини и супермаркети, училища и детски градини, спирки на градски транспорт, удобства за спорт и отдих.
Сградата е 10-етажна и се състои от три входа А, Б и В.
Има възможност за закупуване на паркоместа и гаражи.
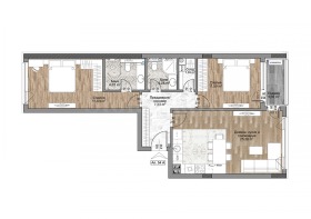
Апартаментът е тристаен, с обща площ 99.74 кв.м (нетна площ 85.52 кв.м + общи части 14.22 кв.м) и е разположен на четвърти етаж.
Разпределение:
коридор;
дневна с кухня и трапезария;
килер;
две спални;
две бани с тоалетни;
тераса.
Жилището се предлага за продажба качествено завършено по БДС, на шпакловка и замазка.
Технически характеристики:
Висок клас на строителството с най-модерни технологии и материали при изграждането, тухли Винербергер, петкамерна дограма, асансьори висок клас. Общите части са изпълнени луксозно, а настилката е от естествен камък гранит. Отоплението е на газ.
Етап на завършеност:
ВиК инсталации /изпълнени на ниво тапа/;
Електроинсталации, звънчево-домофона инсталация, ТВ инсталация, мълниезащитна инсталация всичките в напълно завършен вид;
Отоплителна инсталация - на газ;
Вентилационна инсталация;
Гладка вътрешна мазилка с шпакловка;
Бани и санитарни възли на мазилка и замазка;
Вътрешна стандартна дограма;
Външна ПВЦ- дограма със стъклопакет;
Блиндирани входни врати;
Общи части в напълно завършен вид.
Схема на плащане:
Предварителен договор 40%
Акт 14 30%
Акт 16 30%
Очакваме Вашето запитване
Ако желаете да организирате оглед на имот, който Ви интересува, или да посетите някой от нашите офиси, моля свържете се с нас. За ...
За повече информация свържете се с нас и цитирайте референтния номер на имота. Моля, кажете, че сте видeли обявата в този сайт.
Референтен номер: AP 131181
Тел: +359 889 007 010
Моб: +359 877 777 888 (WhatsApp, Viber, SMS)
Отговорен брокер:Стоунхард ПРЕМИЪР
Без комисиона от купувача
Виж всички обяви в stonehard.bazar.bg или тук
        
       
         
         
         
         
             
             
             
            






