AXIO осигурява 24/7 обслужване чрез виртуален асистент за въпроси, информация и директно запазване на оглед, с последващ контакт от консултант.
АXIO представя тристаен апартамент намиращ се в ж.к. Овча купел в нов затворен комплекс от две жилищни сгради. С Акт 14 (чл. 181); Срок за завършване - до края на 2026г.
Изложение: Юг-запад,
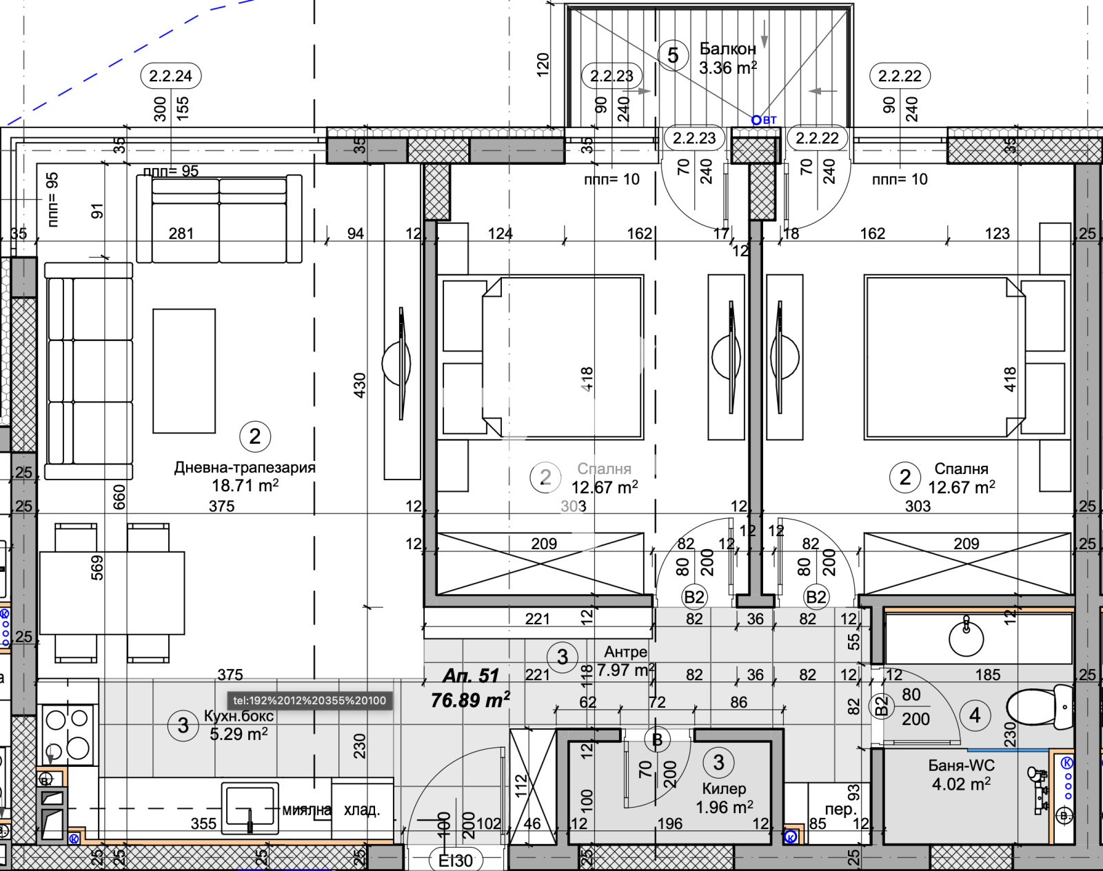
Разпределение: дневна - трапезария, кухненски бокс, две спални, балкон, баня, килер, антре, мокро помещение
Още с влизането в апартамента ви посреща просторно антре с площ от 7.97 кв.м, което подрежда дома и осигурява удобен достъп до всички помещения. Оттук се влиза в светлата дневна с трапезария (18.71 кв.м), оформена като естествено сърце на жилището, място за почивка, срещи и споделени моменти. Кухненският бокс (5.29 кв.м) е практично разположен и допълва дневната зона, без да нарушава усещането за простор.
От дневната се излиза към балкон (3.36 кв.м), който предлага възможност за уютен кът за отдих и приятна гледка. Двете спални, всяка с площ от 12.67 кв.м, са отделени в по-тиха част на жилището и осигуряват комфорт, спокойствие и гъвкавост при обзавеждане, като са подходящи както за семейство, така и за кабинет или стая за гости.
Банята с тоалетна (4.02 кв.м) е функционално позиционирана, а предвиденият килер (1.96 кв.м) допринася за практичността и подредения облик на дома.
Дом със спокойствие и гледка към планината. Локацията носи истински комфорт: метростанция на около 700 м (ул. Братя Прошек и ул. Иван Хаджийски ) - 8 мин пеша или 2 мин с кола, а точно пред сградата има автобусна спирка с линии 102, 73, 11 и 60, така че градът е на една ръка разстояние.
Наоколо ще откриете богат избор от супермаркети и магазини, медицински центрове, дентални и ветеринарни клиники, аптеки, както и училища и детски градини. В близост се намират ресторанти, търговски център и храм - всичко необходимо за пълноценен, подреден живот.
Самата сграда посреща с дизайнерски оформени входове и общи части. Поставена е висококачествена PVC дограма Schüco с троен стъклопакет, която осигурява отлична шумо и топлоизолация, а отоплението е на ТЕЦ, което гарантира удобство и надеждност през зимните месеци.
Отвън ви очакват поддържани зелени площи и градинки с детска площадка - красиво, чисто и уютно пространство за почивка и игра.
Имотът е функционално разпределен и разполага с всички необходими помещения за удобното ви ежедневие. От терасата се разкрива прекрасна гледка към Люлин планина.
С възможност за закупуване на паркомясто.
Ако Вие търсите такъв тип имот, ние ще осигурим сигурна сделка за Вас.
За оглед и допълнителна информация:
Тел.: 0883 437 273 | Email: [email protected]
AXIO - Умната агенция за недвижими имоти







