За повече информация обадете ни се на тел: 0882 817 452 или 02 425 68 14 и цитирайте референтния номер на имота: Sfa 87777.
Отговорен брокер: Николай Попов
Без комисионна от купувача!
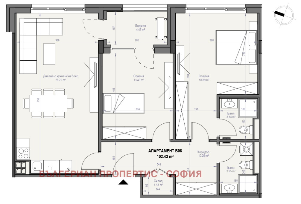
Апартамент V16 , обща площ 117.90 кв.м. (нетна площ 102.43 кв.м. + общи части 15.47 кв.м.).
Съвършенство с визия за бъдещето, лукс, инженерна прецизност и устойчивост, на метри от символите на София!
219 DONDUKOV е проект, който променя представата и поставя началото на нова ера на градския живот.
Този комплекс е повече от сграда това е израз на инженерно съвършенство, естетика и интелигентен дизайн. Проект, в който визията и функционалността се преплитат в перфектен баланс, създавайки дом, който предлага не просто удобство, а истинско качество на живот.
Разположен само на 219 метра от бул. Княз Александър Дондуков , комплексът предлага идеална локация, отлична свързаност с метрото и централните зони на столицата, както и спокойна жилищна среда с висока добавена стойност.
Проектът предлага двустайни и тристайни апартаменти, проектирани с интелигентно разпределение и максимално използване на пространството. Без излишни коридори, без компромиси всеки квадратен метър е вложение в удобство, светлина и комфорт.
Има възможност за покупка на гараж, паркомясто в подземен паркинг или на открито паркомясто.
219 DONDUKOV е първата сграда в София с интегрирана фотоволтаична система и батерии, които осигуряват пълна енергийна независимост на общите части. Това означава нулеви сметки за ток в зоните за достъп, осветление и асансьори решение, което е едновременно икономично и екологично. Интелигентната система за събиране на дъждовна вода и сондажният кладенец поддържат зелените площи без допълнителни разходи, превръщайки проекта в устойчив модел за бъдещето.
Премиум материали и висок стандарт на изпълнение
Сградата е монолитна, стоманобетонна, с фундаментна плоча и кристализираща хидроизолация, устойчива на налягане и самовъзстановяваща се;
Използвани са бетонни смеси от ATMIX и кофражни системи PERI, гарантиращи прецизност и здравина;
Зидариите са от WIENERBERGER тухли с отлична топло- и шумоизолация, а конструкцията отговаря на високите изисквания за сеизмична устойчивост;
Алуминиева дограма Schüco AWS 70.H, стъклопакети Saint-Gobain;
Вентилируема керамична фасада;
Асансьори Schindler 3300;
Общите части са с естествен камък, дизайнерски осветителни решения, интелигентна система за контрол на достъпа.
Удобства и ...







