БИЛДИНГ БОКС предлага за продажба тристаен апартамент в нова сграда в кв. 'Остромила'.
Предимства на имота:
- ЛОКАЦИЯ: В самото начало на кв. 'Остромила', в близост до VIA Парк Юг.
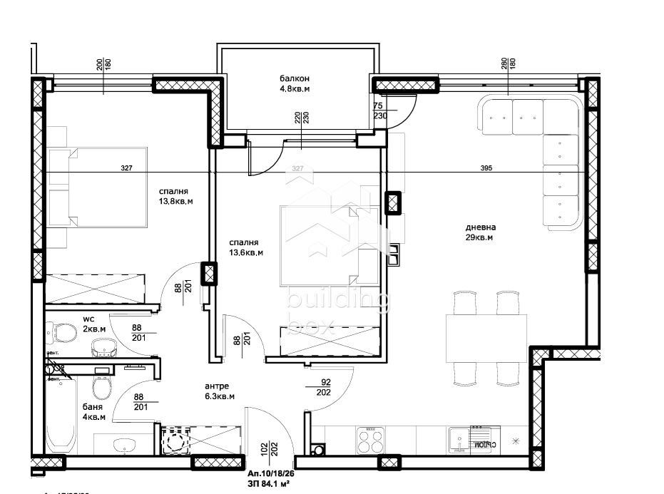
- РАЗПРЕДЕЛЕНИЕ: Просторна всекидневна с кухненски бокс, две спални, антре, две санитарни помещения и тераса.
- ЕТАЖНОСТ: 3-ти етаж от общо 4.
- ОТОПЛЕНИЕ: Електричество.
- ИЗЛОЖЕНИЕ: ЗАПАД.
- ПАРКИРАНЕ: Възможност за закупуване на паркомясто или гараж от инвеститора.
- СГРАДА: Апартаментът се намира в нова сграда от инвеститор с дългогодишна история и опит.
- ЕТАП НА СТРОИТЕЛСТВО: АКТ 14. Въвеждане в експлоатация (АКТ 16) се очаква през 2027г.
- СХЕМА НА ПЛАЩАНЕ: 20% сега останалата част от сумата при АКТ 16.
БИЛДИНГ БОКС предоставя безплатна консултация и съдействие при финансиране на избрания от Вас имот.
Оферта 13852







