Имоти Home Place Ви предлага тристаен апартамент с морска панорама и перфектна локация!
Новострояща се жилищна сграда с включено паркомясто в цената!
Локация:
-Тиха и престижна зона с лесен достъп до центъра на Варна и Морската градина
-Морска панорама и отлична комуникация
Параметри на имота:
-Тип имот: тристаен апартамент
-Етаж: 2-ри
-Чиста жилищна площ: 125 кв.м
-Изложение: изток / запад
-Паркомясто: включено в цената
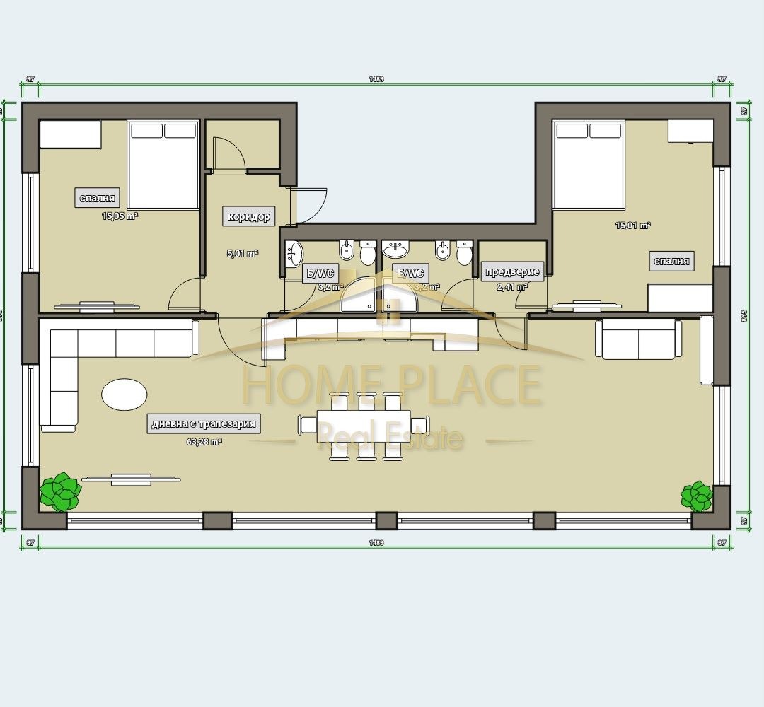
Разпределение:
-Просторна дневна с трапезария 63,29 кв.м
-Две спални 15,05 кв.м и 15,10 кв.м
-Две бани с тоалетна по 3,20 кв.м всяка
-Коридор 5,01 кв.м
-Килер / складово помещение 2,18 кв.м
-Предверие 2,42 кв.м
Строителство и срокове:
-Акт 14: до юни 2026 г.
-Въвеждане в експлоатация (Акт 16): до декември 2026 г.
-Модерна архитектура и високо качество на строителните материали
Предимства:
-Морска гледка и отлична ориентация
-Паркомясто включено в цената
-Просторен и функционален апартамент
-Ново строителство от доказан инвеститор
-Престижен и предпочитан район
За повече информация и оглед:30103
Home Place Ние работим за Вас!







