ЕКСКЛУЗИВНО БЕЗ КОМИСИОННА ОТ КУПУВАЧА ЗА ВСИЧКИ ОФЕРТИ НА АГЕНЦИЯ ВИЖЪН ОТ СТРОИТЕЛИ ЗА ПЕРНИК И СОФИЯ. ТОП ЛОКАЦИЯ!
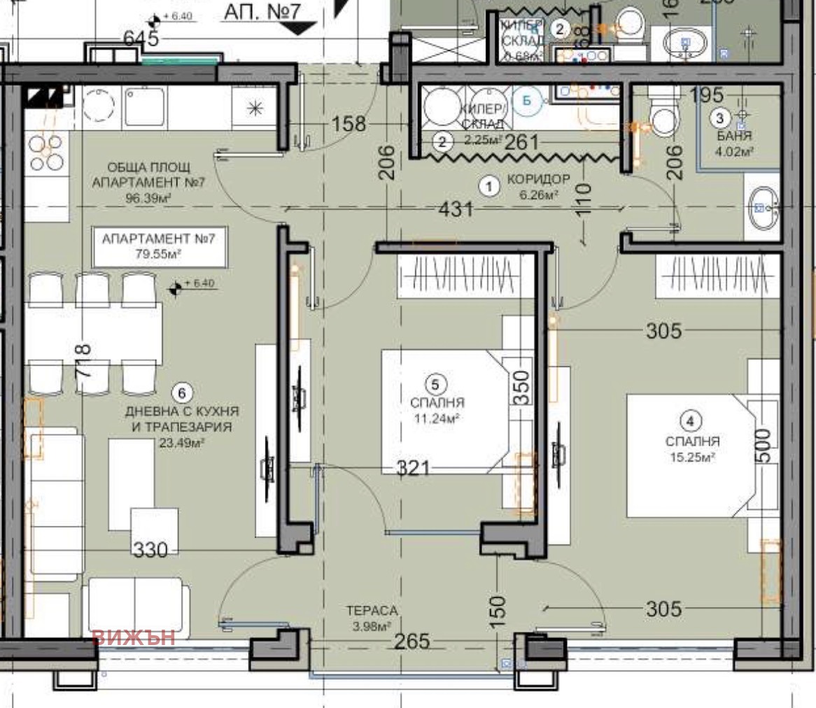
Агенция Вижън Ви предлага 3-стаен апартамент /ап.Б7 на схемата/, находящ се в сграда с модерни общи части, която разполага с денонощно видеонаблюдение и система за контрол на достъпа, осигуряващи спокойствието на всички обитатели. Строителството ще бъде изпълнено с материали от висок клас, иновативни фасадни решения изпълнени с HPL и ETALBOND, общи части изпълнени с висок клас строителни материали и хидравличен асансьор на испанската марка Орона. Има възможност за покупка на подземни паркоместа /11 000 - 12 000 евро/, надземни паркоместа /7500 евро/, надземни гаражи /25 000 евро/ и подземни гаражи /18-20 000 евро/. Сградата е проектирана да осигурява максимално количество естествена светлина за всички апартаменти. Района е добре устроен и комуникативен. Благоприятната локация там прави имота подходящ както за инвестиционна цел, така и за лично ползване. Апартаментът който предлагаме е на 3 етаж /2-ри жилищен/, с изложение: юг. РЗП на имота 96,39 кв.м от които 79,55 кв.м застроена площ и 16,84 кв.м общи части, разгърната по следния практичен начин: хол с трапезария и кухненски бокс, спалня, детска стая, тераса, баня с тоалетна, коридор и килер. Отоплението в сградата е на ТЕЦ. В близост има: хипермаркет, аптека, училища, детска градина, банки, кооперативен пазар, спирка за града и столицата. Агенцията също така съдейства и за отпускане на банков ипотечен кредит още на Акт 14, изготвяне на пазарна оценка на имота, както и за довършване и обзавеждане на дома ви. Повече информация за самият проект можете да откриете на нашият сайт - https://vision-estates.com/imoti/orhideya-park/orhideya-2-sgrada-3/
За проекта: сградите съчетават изискан стил, оригинални фасадни решения изпълнени със силиконова мазилка,HPL и Еталбонд, както и изтънчен вътрешен дизайн. В сградата може да намерите различни по големина апартаменти двустайни, тристайни и четиристайни, като паркирането е обособено чрез подземни и надземни паркоместа и гаражи. В сградите ще бъдат разположени и търговски обекти на ниво партер, като всичките вече са ПРОДАДЕНИ.
Дограма висок клас на РЕХАУ с троен стъклопакет и цвят антрацит.
Отопление Отоплението ще бъде централно от ТЕЦ, като апартаментите имат възможност и за изграждане на подово отопление.
Умен дом Заедно с електроинсталацията по желание на клиента може да бъде изградена заготовка за Умен дом, която може да управлява почти всички процеси в апартамента чрез гласов контрол (Алекса, Сири и Гугъл хоум) или чрез приложение.
Локация Намира се на изключително комуникативно място във вътрешността на квартал Изток (ул. Юрий Гагарин, ул. Горна Оряховица и ул. Златоград) в съседство от ниско етажно строителство и разнообразие от зелени площи. До пицария Deep Dish срещу магазин Била.
В близост има детска градина,голям магазин за хранителни стоки, жп гара, парк и спирка за града и столицата.







