✔Проверен инвеститор ✔ Разсрочени схеми на плащане! ✔ Гарантирана цена до Акт 16
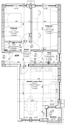
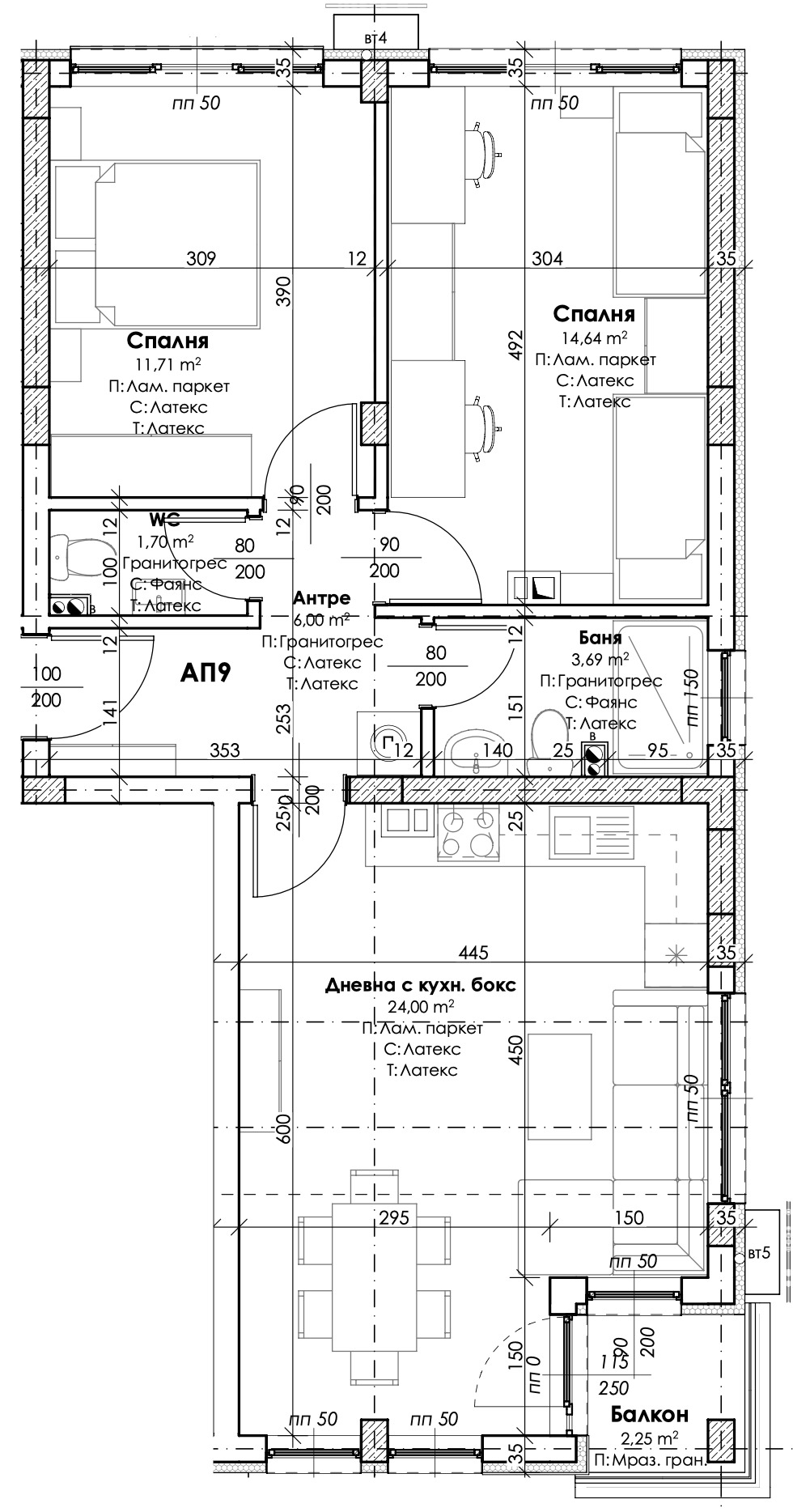
➡ Апартаментът се състои се от антре, баня с тоалетна, отделно тоалетна, 2 спални, дневна с кухня и трапезария, тераса и е с обща площ от 90,91 кв.м.
✔ Строителство: Сградата се строи от утвърден на пазара строител с множество завършени на 100% обекти и доказана репутация. Сградата е с 4 жилищни етажа.
✔Локация: кв. Остромила
✔Паркинг: Възможност за закупуване на паркомясто/гараж.
✔Апартаментите се издават: шпакловка и замазка, изградена ВиК, ел. инсталация с монтирани ключове и контакти и ел. табла, входни блиндирани врати.
Реф. 9092
➡Alpha Real Estate, специализиран посредник на водещите строителни фирми, член на Националната браншова организация НСНИ. За още предложения ново строителство в гр. Пловдив посетете нашия сайт: https://alphaestate.bg







