Гъвкави схеми на плащане!
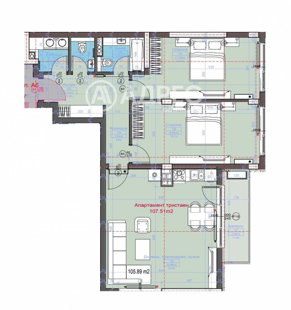
Тристаен апартамент със ЗП-107,51м2 и РЗП-120.67м2, състоящ се от: антре, дневна с трапезария и кухненски бокс- 31 кв.м. и балкон към нея, спалня от 17 кв.м., втора спалня от 18 кв.м., баня с тоалетна, отделна тоалетна и мокро помещение. Изложение И/Ю. Предвиденото отопление е на газ. Паркоместа на цени от 23400 евро, гаражи на цени от 31500 евро.
Схема на плащане:
- Предварителен договор 30%
- кота на етажа на имота - 20%
- Акт 14 - 20%
- Акт 15 - 20%
- Акт 16 - 10%
Втора схема на плащане:
-10% предварителен договор;
-90% акт 16.
Намира се на тиха улица в кв. 'Бояна', местност Гърдова глава. Спирки на трамвай 5,4,11 и автобус 111.
Малък жилищен комплекс от две бутикови сгради с ниска етажност и малък брой жилища, осигуряващи спокойствие и комфорт на своите обитатели. Проектът е с обща площ от 4242 кв.м. Разполага с апартаменти и подземни гаражи. Достъпът до гаражите е посредством платформа за автомобили, като е осигурена топла връзка със сградите.
Перфектна локация. От всяко жилище се разкрива прекрасна панорама към цялата столица.
Обади се сега и цитирай този код 602274







