Предлагаме на Вашето внимание, непреходен тристаен апартамент в нова луксозна сграда с Акт-15, която до края на годината ще вземе Акт-16 и Разрешение за ползване.
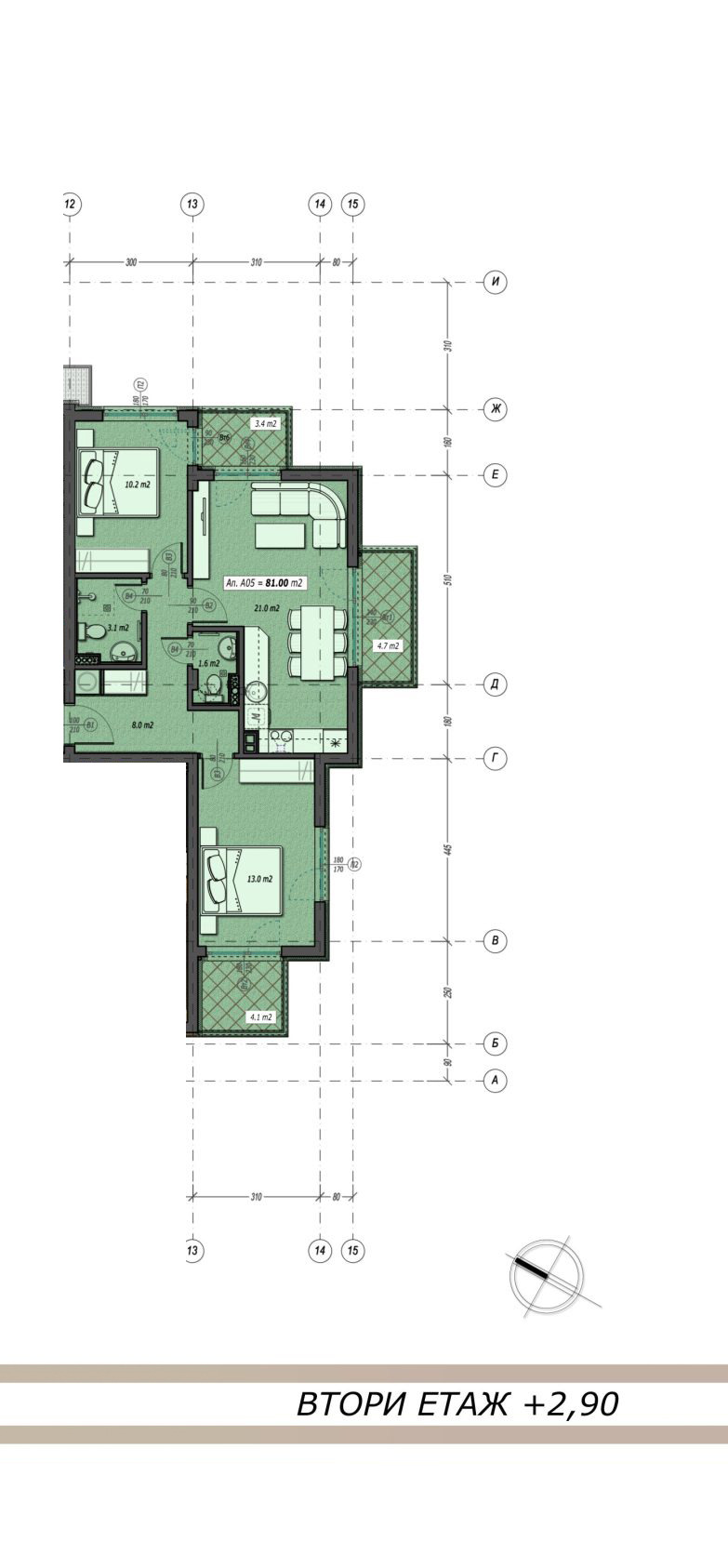
Освен с добрата локация, апартаментът се отличава с функционалното си разпределение и просторни помещения. Жилището е с югоизточно изложение, намира на втори жилищен етаж, състои се от просторен хол с кухненски бокс, две непреходни спални, баня с тоалетна, самостоятелна тоалетна, антре и три тераси. Отоплението в жилището е предвидено с климатици.
Жилището е с блиндирана врата на СОЛИД 55, поставени изводи във всяка стая за монтаж на климатици с отделение на фасадата и общо заустване на конденза, окабеляване за СОТ, видео домофона система, поставени изводи за кабелна телевизия, Интернет във всяка стая с табло за слаботокови инсталации.
При строителството на сградата се използват висококачествени материали, подовите настилки в общите части са от естествен камък, а стените завършени с декоративни мазилки. Дограмата на сградата е PVC (REHAU SYNEGO), обков MACO с троен стъклопакет (Високоенергийно+Бяло+Нискоемисийно). Висококачествена топлоизолация - ВАТА от 12 см., модерна Клинкерна фасада, безшумни асансьори - KONE, изградено декоративно фасадно осветление, изградена система за видео наблюдение и контрол на достъп.
Сградата се намира в бързо развиващ се район, в полите на Витоша, в близост до НСА, Зимен Дворец на спорта, магазин Кауфланд и Фантастико.
Районът е с изградена инфраструктура, множество търговски обекта, места за забавление, в непосредствена близост до кв. Студентски град.
Към жилището има възможност за закупуване на подземни гаражи в сутерена на сградата.
За повече информация и огледи, телефон за контакт: 0884-888-353







