БЕЗ КОМИСИОННА ОТ СТРАНА НА КУПУВАЧА! ЦЕНИ ОТ ИНВЕСТИТОР!
Кий Естейт Ви предлага прекрасна възможност да се сдобиете с жилище в комплекс с контролиран достъп в предпочитания за живеене квартал Бояна, местност Гърдова глава. Чудесна локация сред зеленина и тишина. Районът е предимно с ниско строителство, бърз достъп до центъра на София, в близост има училища, детски градини и магазини, всичко необходимо този комплекс да се превърне в уютно семейно жилище, предлагащ удобство на една ръка разстояние или инвестиционен имот с отлична възвръщаемост. Сградите ще бъдат изградени с висококачествени материали без компромис в целия процес на строителството, естествена светлина във всички помещения на апартаментите благодарение на френските прозорци, които са заложени в проекта, луксозни общи части носещи комфорт на своите обитателите, а за най-малките ще има и зони за игри и забавления.
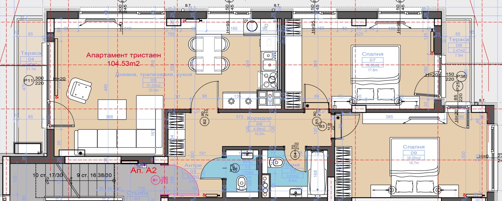
Апартамент А2 се намира в сграда А на втори етаж, с чиста площ от 104,53 кв. м. , а с общите части е 117,28, със следното функционално разпределение: антре с площ от 5,73 кв. м. , коридор с площ от 4,58 кв. м. , дневна, трапезария и кухня с обща площ от 31,03 кв. м. с излаз на тераса с площ от 4 кв. м. , две спални с площ от по 16,50 кв. м. и 16,05 кв. м. , от които се излиза на втора тераса с площ от 2,47 кв. м. , баня с тоалетна с площ от 3,61 кв. м. , отделно друга тоалетна с площ от 1,93 кв. м.
За ваше удобство прилагаме и схема с разпределението на имота.
Към всеки апартамент може да се закупи подземно паркомясто или подземен гараж на отделна цена с топла връзка към апартаментите.
Начален етап на строителство, предимство за избор на разпределения и индивидуални подобрения. Възможност за извършване на довършителни работи по проект на клиента.
Гъвкава схема на плащане спрямо желанията на клиентите.
В сградата разполагаме и с други апартаменти- двустайни, тристайни и четиристайни с двор или тераси.
За огледи и повече информация: Радка Чиликова 0886601225







