Акт 16 - Артекс - сграда Хармони!
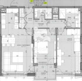
Жилището се намира на четиринадесети от общо шестнадесет етажа, с чиста площ от 108,2 кв.м
Имотът е тристаен и се състои от входно антре, дневна с кухненски бокс, две спални, две бани с тоалетни, склад и тераса.
Отоплението е предвидено чрез ТЕЦ и климатици.
Изложението е изток.
Цената е без ДДС.
Ако търсите съчетание от лукс, комфорт, уют и прекрасна панорамна гледка, това е мечтаният дом.
Апартаментът е с перфектно разпределение, прави форми и дизайнерски обзаведен.
Намира се на бул. Г-м Димитров и бул. Драган Цанков. На изключително подходящо и комуникативно място. В непосредствена близост от метростанция, детски градини, училища, супермаркети и спирки на градски транспорт.
Възможност за покупка на подземни паркоместа и гаражи.
Билдинг Бокс предоставя безплатна консултация и съдействие при финансиране на избрания от Вас имот.
Оферта 26451
Виж всички обяви в buildingbox.bazar.bg или тук



