Билдинг Бокс предлага за продажба тристаен апартамент в кв. Дианабад, в близост до парк 'Студентски' и х-л 'Вега'.
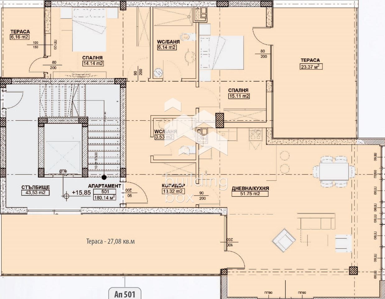
Апартаментът е с чиста застроена площ 128.82 кв.м, както и панорамни тераси с обща квадратура от 49.93 кв.м, разположен на шести етаж от общо шест етажа. Апартаментът се състои от входно антре, дневна с кухненски бокс, две спални, две бани с тоалетни, три тераси и отделно складово помещение. Изложението е юг-запад-изток. Отоплението е на ТЕЦ.
Бутиковата шест етажна жилищна сграда се състои само от 16 апартамента, намира се на пешеходна близост до метростанция 'Г.М. Димитров', супермаркет 'Фантастико', аптека, парк 'Студентски', училище и детски градини.
Строителство:
Зидария - високоенергийни тухлени блокове 25 см и преградни 12 см;
Дограма - алуминиева, ETEM E45, прахово боядисани в цвят RAL7016 мат;
EPDM уплътнители;
Обков GU - Германия, 60мм ширина на профила 67мм ширина на крилото, 36мм стъклопакет, изградени от 2 бр. безцветни стъкла по 4 мм и външно 'четири сезонно';
Топлоизолация - EPS 10см - рьофикс, силиконова външна мазилка 1.5, HPL и каменна вата 10см за декоративни орнаменти около отворите;
Вътрешна машинна мазилка - варо-гипсова шпакловка Rofix 150 - 2см;
Хидроизолация - VJF газопламъчна 2 пласта - 4 мм без посипка SBS, 4,5 кг с посипка SBS , в основите VJF газопламъчна 2 пласта - 4 кг без посипка SBS, 4 кг без посипка SBS;
Балкони - МАПЕИ двукомпоненктна
Положен тръбен път за климатици във всяка стая;
ТЕЦ;
Входни врати блиндирани;
Асансьор Лифтком - електрически, безредукторен, мотор - Alberto Sassi Италия с честотно управление VVVF.
Впечатляващия и едновременно семпъл и изчистен дизайн на сградата придава стил и естетика на мястото, където е ситуирана. Балансът между подбраните материали я превръща в изключително приятна за окото гледка в така натоварената градска среда.
Има възможност за покупка на Гаражи и паркоместа.
Може да се възползвате от изключително гъвкави схеми на плащане, позволяващи комбинирани начини на финансиране.
Билдинг Бокс предоставя безплатна консултация и съдействие при финансиране на избрания от Вас имот.
Оферта 6451







