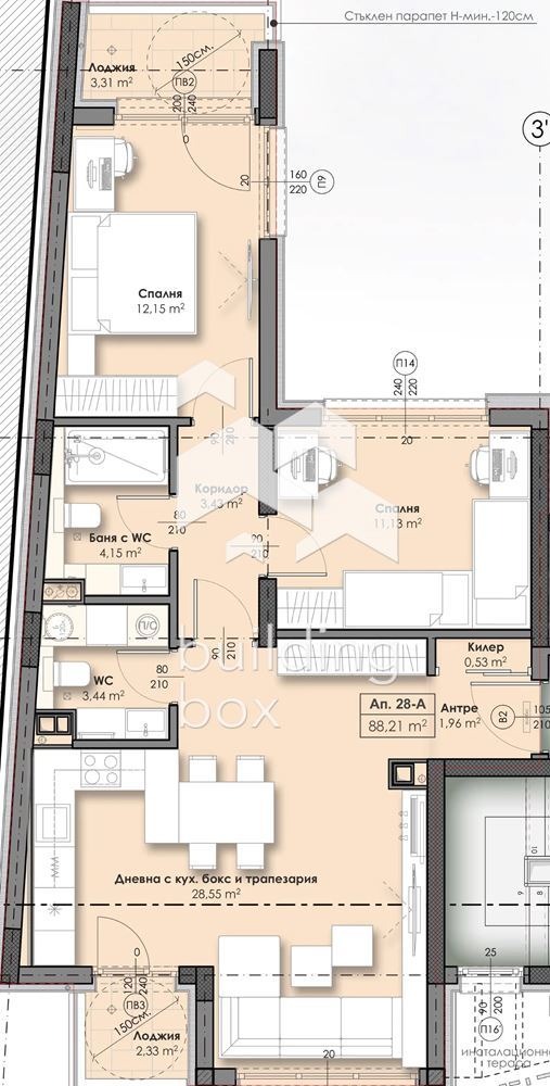
РАЗПРЕДЕЛЕНИЕ: Жилището е със застроена площ от 88,21 кв.м. и разполага с две спални, дневна с трапезария и кухненски бокс, две лоджии, баня с тоалетна, тоалетна, коридор, килер и антре.
Изложението на жилището е на изток и запад. Апартамент 28 е разположен на 8-ми етаж от 9. Отоплението е на електричество конвектори и климатици. Налични подземни паркоместа и гаражи, които могат да бъдат закупени допълнително.
ЕТАП НА СТРОИТЕЛСТВО Акт 14
ЛОКАЦИЯ: Жилищната сграда се намира в ж.к. Връбница, в непосредствена близост до метростанция.
Метростанция Ломско шосе само на 50 метра
61 ОУ Св. св. Кирил и Методий 200 метра
74 ОУ Гоце Делчев 500 метра
супермаркет БИЛА 500 метра
супермаркет Т-MARKET 700 метра
Северен парк 900 метра
супермаркет ЛИДЛ 1 километър
Софийски Университет 6 метро спирки
СГРАДА: Сградата е проектирана на 9 жилищни етажа, с общо 31 бр. апартамента. Апартаментите разполагат с функционални разпределения с всекидневни и спални с голяма площ, максимална светлина и простор. Качествено строителство.
Фасада
Фасадата предстои да бъде изпълнена от силикатна мазилка и декоративна рамка от еталбонд и HPL- опасваща сградата.
Хидроизолация
Цялостна допълнителна хидроизолация на сутерена и водоплътен бетон.
Дограма
Най-висок клас алуминиева система за врати и прозорци с прекъснат термомост - Thermo Smart WP78 с троен стъклопакет 44мм.
Фоайе и общи части
Фоайе и общи части по специален интериорен проект - с вътрешно оформление от гранит, съчетан с декоративни елементи ламинам.
Сигурност
Ограда и контролиран достъп с чип до двора и сградата.
ИНВЕСТИТОР: Инвеститор с голямо портфолио завършени и успешно въведени в експлоатация сгради.
Билдинг Бокс предоставя безплатна консултация и съдействие при финансиране на избрания от Вас имот.
Оферта номер: 22460
Виж всички обяви в buildingbox.bazar.bg или тук







