'Urban Estate' Ви представа тристаен апартамент на първи над партер (втори жилищен) в новострояща се бутикова сграда в кв. Витоша. Сградата е четири надземни етажа и разполага с 20 апартамента. Използват се най-висок клас материали. Намира се на много удобно място, до бул. Симеоновско шосе и ул. Филип Кутев, има спирки на градски транспорт, детски площадки, както и изградена пътна инфраструктура.
Сградата е с впечатляваща фасада, клинкер тухлички и стъклени балкони. Разполага със заграден озеленен двор, подземен паркинг с гаражи и паркоместа.
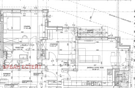
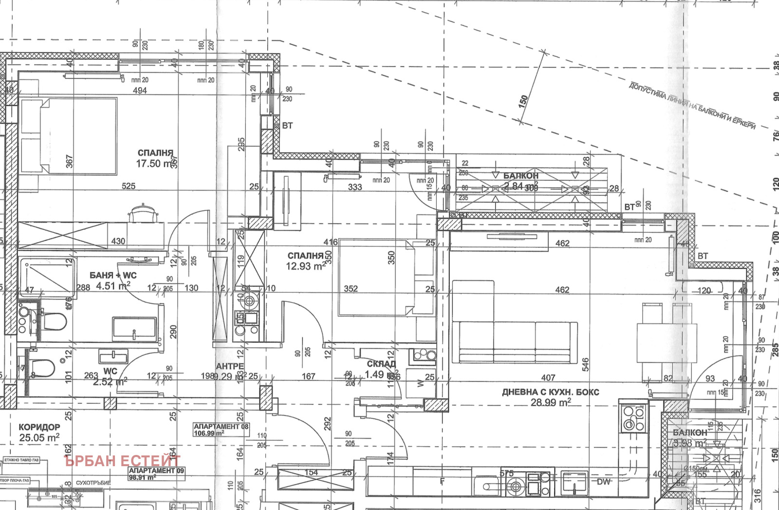
Апартаментът е 128.65кв.м. с общи части, 106.99кв.м. застроена площ, изложението е Север/ Изток, продава се на шпакловка и замазка, с изградени инсталации и висок клас дограма.
Разпределение на апартамент 8:
-Антре -Тоалетна
-Главна спалня (17.50кв.м.) с баня с тоалетна (4.50кв.м.) -Втора спалня (13кв.м.) с балкон
-Дневна с кухненски бокс (29кв.м.)
-Складово помещение (1.50кв.м.)
В момента е на етап полагане на основи. Очакван акт 16: Лято на 2027 година.
Разполагаме с още двустайни, тристайни и четиристайни апартаменти в сградата.
Ако търсите или предлагате подобен имот, свържете се с нас!
Можем да съдействаме на всеки етап от финансирането (работим с всички банки, а услугата е безплатна), юридическо консултиране, покупко-продажба, интериорен дизайн, строително-ремонтни дейности, почистване и поддържане на имота, управление през краткосрочен или дългосрочен наем и много други.







