Титан Пропъртис - офис бул.България има удоволствието да ви представи тристаен апартамент в модерна новострояща се сграда в затворен комплекс ж.к. Овча купел 2- комуникативно място, в близост до спирки на градски транспорт ,супермаркети, магазини , детски градини и училища, медицински център, както и метростанция Горна Баня. Бърз и лесен достъп до бул. Президент Линкълн.
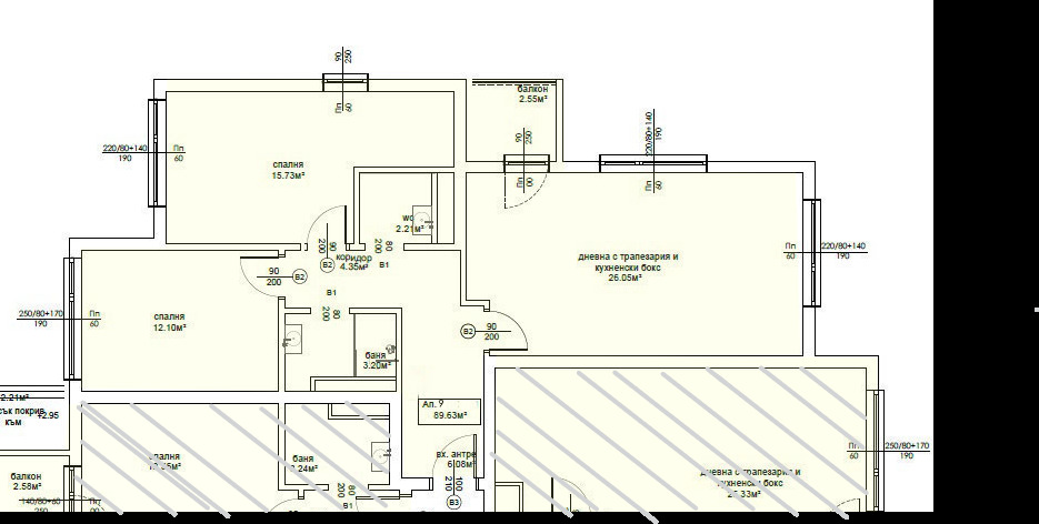
Апартаментът е разположен на втори жилищен етаж от шест етажа и разполага с площ от 102 кв.м. , от които 94 кв.м. - застроена площ. Разпределението както следва е : антре, дневна с трапезария и кухненски бокс, две спални, баня с тоалетна, тераса. Изложението е запад. Отоплението е на ТЕЦ. Сградата е на етап АКТ 14 и ще бъде завършена края на 2027г. Жилището се предлага на шпакловка и замазка, предоставяйки възможност за персонализация на интериора. Предоставя идеалната възможност за новите собственици да създадат своя уютен и стилен дом в един от най-желаните райони на градa. В сградата предлагаме няколко апартамента с различна квадратура ,етаж и цена.
За комплекса :
Това е модерен затворен комплекс с ограничен достъп, който предоставя високо качество на живот в 7 жилищни сгради, изградени по най-новите строителни стандарти. Сградите разполагат с асансьор, който обслужва и подземните етажи, осигурявайки удобство за жителите.Комплексът е на 300 метра от метростанция Горна Баня, което осигурява лесен достъп до градския транспорт. В непосредствена близост се намират хипермаркетите Лидл и Била, както и болница Доверие, което прави локацията изключително удобна за ежедневни нужди.Проектът е реализиран с акцент върху шумо- и топлоизолацията. Използвана е висококачествена немска шесткамерна ПВЦ дограма с троен стъклопакет, осигуряваща отлична изолация. Фасадите са проектирани с 12 см топлоизолация BAUMIT, което гарантира енергийна ефективност. Апартаментите ще бъдат издадени на шпакловка и замазка, с монтирани блиндирани входни врати. Предвидена е възможност за поставяне на климатик, като всички необходими тръбни и електрически разводки вече са изпълнени.
Комплексът ще бъде топлофициран, предоставяйки удобство и ефективност през студените месеци, а вътрешният двор от 10 декара и детската площадка осигуряват приятна и спокойна среда за живеене.
За повече информация или оглед на това и други предложения , моля свържете се с нас на посочения телефон. Реф. Номер : 1003







