КМВ Пропърти Мениджмънт Ви предлага за продажба удобен двустаен апартамент в нов жилищен комплекс от затворен тип, който се изгражда в р-н Сердика, в непосредствена близост и осигурен пешеходен преход до Централна ЖП гара и автомобилен достъп от бул. История Славянобългарска.
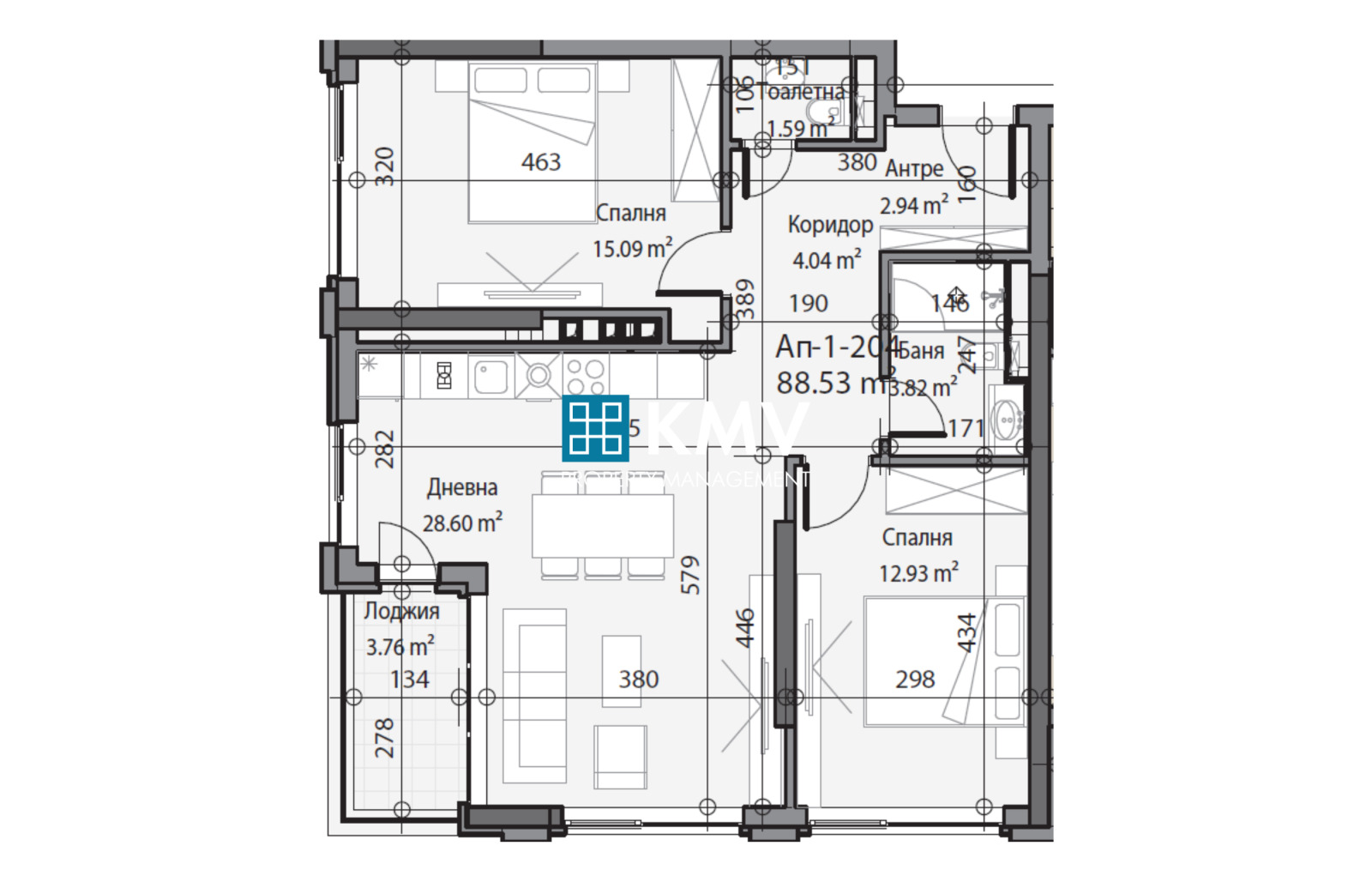
Жилището е със ЗП от 88,53 кв. м, намира се на етаж 14 и е с изложение югоизток.
Комплексът ще бъде от затворен тип, което предвижда ангажимент за месечна такса за поддръжка за първите 2 години след въвеждане в експлоатация.
Комуникативната локация /големи булеварди и спирки на основни линии от градския транспорт, включително и метростанция/ и богатия избор на имоти /ателиета и апартаменти/ отличават комплекса, като го правят привлекателен за всеки, който търси нов удобен и модерен градски дом.
На метри от ключови спирки на основни линии на градски транспорт и Метростанция Централна ЖП Гара, от магазини Bauhaus, Технополис, Jysk и Хиполенд.
Предлагаме разсрочена схема на плащане, като цените са с включен ДДС:
- Депозит- 2 500 Евро
- 40% при Предварителен договор
- 40% при достигнат Акт 14
- 10% при Акт 15
- 10% при Акт 16
За повече информация се свържете с нас на телефон: 0877 000 900; 0884 200 333; 878 200 336







