ДИРЕКТНО ОТ ИНВЕСТИТОР!
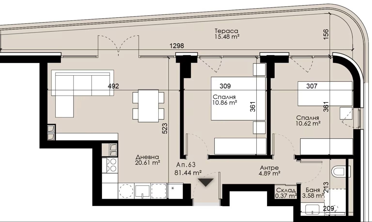
Предлагаме на Вашето внимание тристаен апартамент, разположен в новостроящ се жилищен комплекс - ЛИБРА. Апартаментът се намира на 15-ти жилищен етаж от общо 16. Обща жил.площ 97,65 кв.м. (81,44 кв.м. без общи части). Състои се от: коридор/антре, баня с тоалет, 2 спални, дневна с кухня/трапезария и тераса с излаз на трите стаи, с панорамна гледка към града и бул.Вл.Варненчик.
Разположена в една от най-предпочитаните локации във Варна, сградата комбинира модерна архитектура, качествено строителство и спиращи дъха гледки към Варненското езеро и града.
Тук ще откриете не само дом, но и сигурна инвестиция в един от най-перспективните райони на Варна. Удобното местоположение и качественото изпълнение я правят идеален избор, както за живеене, така и за отдаване под наем.
Тук ще откриете всички необходими условия за комфортен и модерен начин на живот:
Подземен паркинг и контрол на достъпа за сигурност и удобство.
Зелени площи и детски площадки за отдих и игри.
Елегантно проектирани общи части, които създават усещане за класа и уют
Лесен достъп до ключови пътни артерии и градски транспорт.
Близост до училища, магазини, здравни заведения и развлекателни центрове.
Уникална гледка към Варненското езеро, която ще превърне всеки ден в незабравимо изживяване.
Елегантна архитектура и големи прозорци , които да осигуряват максимално количество естествена светлина.
Висококачествени материали и технологии за устойчивост и дългосрочна стойност.
Енергийно ефективни решения за намалени разходи и по-екологичен начин на живот.
За оглед, цени на свободни имоти или допълнителна информация, не се колебайте да се свържете с нас!







