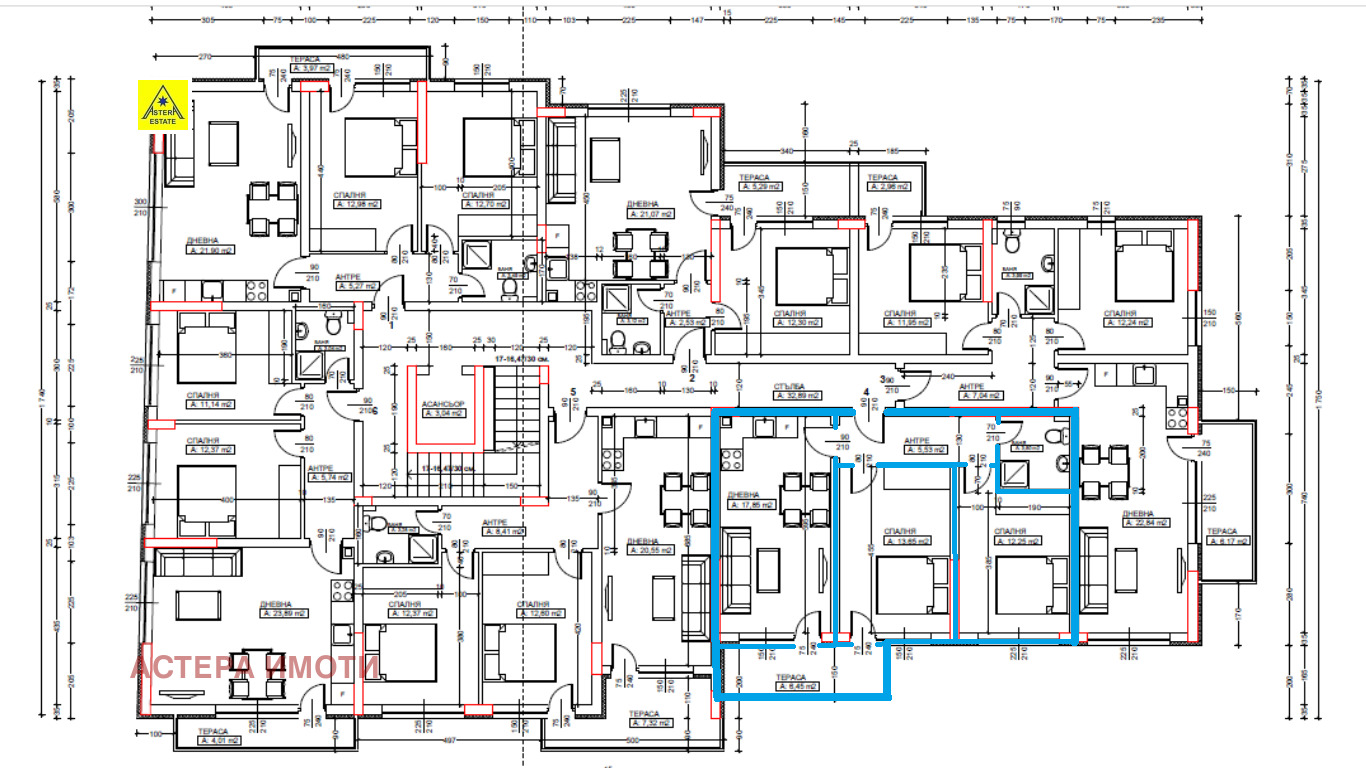
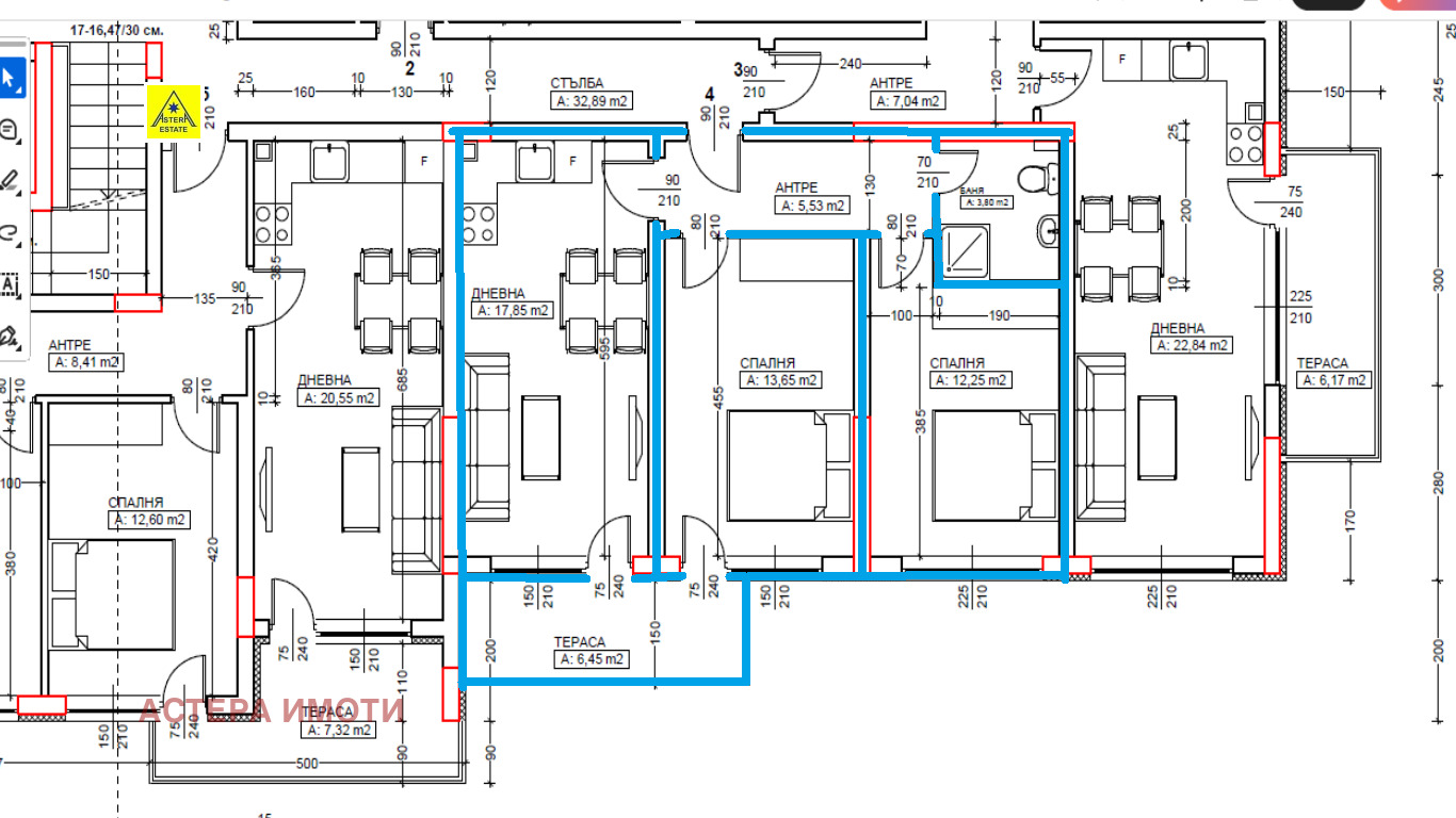
Включване в нов проект!!! Астера Имоти предлага Апартамент, 77,70 кв.м. (69,70 кв.м. чиста), с 2 спални, на 1-ви етаж, в новострояща се сграда, за продажба, в кв. Еленово на гр. Благоевград. Апартаментът се състои от: всекидневна с кухненски бокс, 2 спални помещения, антре, 1 баня с тоалетна и 1 тераса. Апартаментът се продава в полузавършен вид, в следното състояние: под на замазка; стени и таван гипсова шпакловка; входна врата; ПВЦ дограма 7; водопроводна и електрическа инсталации - до тапа и точка съответно. Изложение на апартамента: запад-югозапад. Сградата е в процес на строителство със срок на завършване на проекта до края на 2027г. Сградата ще разполага с: асансьор, домофон, открити паркоместа, приземни гаражни клетки, мазете и паркоместа в подземния етаж на сградата, за които се заплаща допълнително.
Цена на апартамент: 162.725.06 лева 83.200 евро
Цена на мазе: 977,92 лева - 500 евро/кв.м.
Цена на открито паркомясто: 9.779,15 лева - 5.000 евро
Цена на подземно паркомясто: 19.558,30 лева - 10.000 евро
Цена на партерен гараж: от 31.293,28 лева - 16.000 евро до 35.204,94 лева - 18.000 евро
Номер на обява: 2673







