Номер на оферта в агенцията: 111165
Имаме удоволствието да ви представим един нов проект в квартал 'Младост 4'.
Имотифай ЕООД представлява инвеститора и е оторизиран посредник при сделки в проекта.
За проекта:
Проектът е съчетание между изключителна визия, сигурност, функционални разпределения и отлична локация. Намира се в непосредствена близост до метростанция и спирки на градски транспорт.
Проектът разполага със 145 жилища, с различни форми, брой стаи, големина, изложения. Ще бъде завършен като сграда от затворен тип с подземен паркинг, предвидени озеленен двор. Конструкцията ще отговаря на всички съвременни технологии и Европейски стандарти, а жилищата ще покриват всички нужди и изисквания на бъдещите ползватели.
За имота:
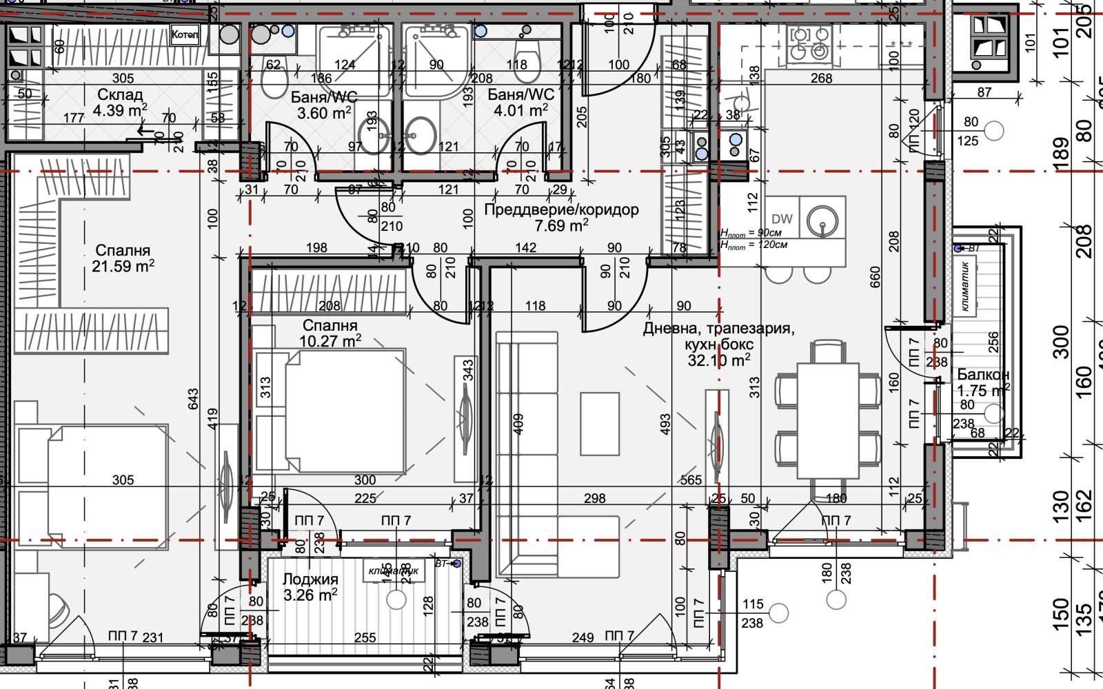
Конкретният имот се състои от: дневна с кухненски бокс, спалня със самостоятелен дрешник, втора спалня, два санитарни възела, два балкона.
Статут - апартамент
Чиста жилищна площ - 105 m2
За локацията:
В близост до Бизнес Парк София.
Метростанция Бизнес Парк- 500 м.
За инвеститора:
Утвърдено строително-инвестиционно дружество с успешно реазлирани проекти в сферата на жилищните недвижими имоти, с изградени и приети в експлоатация над 1500 жилища и офиси.
Очаквано Разрешение за ползване - 2026г.
Гъвкава схема на плащане и опция за покупка с ипотечен кредит.
Възможност за покупка на паркомясто към всеки имот.
За други предложения в проекта и повече информация, не се колебайте да се свържете с нас!
Валя Бойчева 0899387878
Виж всички обяви в imotify.bazar.bg или тук







