Специално предложение - ТОП ЛОКАЦИЯ в сърцето на Пловдив. Нова, модерна и луксозна сграда с акт 14 в района на Хотел Тримонциум.
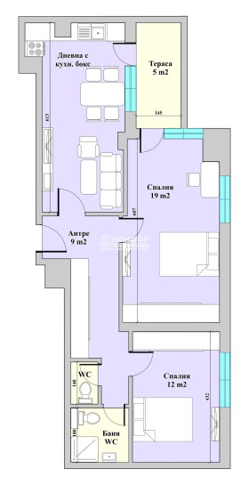
Разпределения - Предлагаме на Вашето внимание тристаен нов апартамент, състоящ се от дневна с трапезария и кухненски бокс, просторна родителска спалня с място за голям гардероб - 19 м2, една тераса - обща за двете стаи, детска спалня, баня с тоалетна, второ санитарно помещение и просторно входно антре с място за гардероб.
Материали - Жилищната сграда се изражда съгласно най-високите технологични изисквания за качество и лукс. Използваните материали са съобразени с най-новите тенденции в строителството - модерна външна облицовка, покривна и фасадна изолация, PVC пет камерна дограма и др. Луксозните общи части с декоративни мазилки, фотоклетки и безшумен хидравличен асансьор, допринасят допълнително за усещането за лукс и комфорт на обитателите. За удобството на своите собственици, сградата разполага с добре осветен подземен паркинг с гаражи, паркоместа с топла връзка към жилищата и контролиран достъп.
Локация - Проектът е в унисон и хармония с историческата част на града в която тя се намира, същевременно съчетавайки всички удобства и нужди на модерния градски човек. Близостта на големи супермаркети, училища и детски градини, допълнително внася комфорт в ежедневието на хората. Локацията в района на главната улица, в близост до търговски центрове и спирки от градски транспорт, прави имота безценна инвестиция за в бъдеще.
Начин на плащане - Кондор имоти предлага възможност за банково финансиране от водещи банки на преференциални условия. Разсрочено плащане в рамките на строителството. Приложените снимки са от други готови сгради на същия строител. 3D изображенията са илюстративни
ВИЖТЕ ОЩЕ ИЗГОДНИ ОФЕРТИ НА https://www.kondorimoti.com/ С ЕЖЕДНЕВНА АКТУАЛИЗАЦИЯ!
Виж всички обяви в kondor.bazar.bg или тук







