ТОП ЛОКАЦИЯ! ИДЕАЛЕН ЗА ИНВЕСТИЦИЯ! ГОТОВ ЗА НАНАСЯНЕ!
✨ Просторен и светъл апартамент, намиращ се на ул. Хемус и ул. Коста Луцев тих и зелен район, в близост до бъдеща спирка на МЕТРО линия 3 🚇! Само на 2 минути пеша от BSR Sofia Business Park, Sky City Mall 🏢.
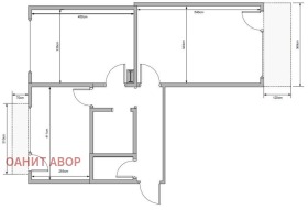
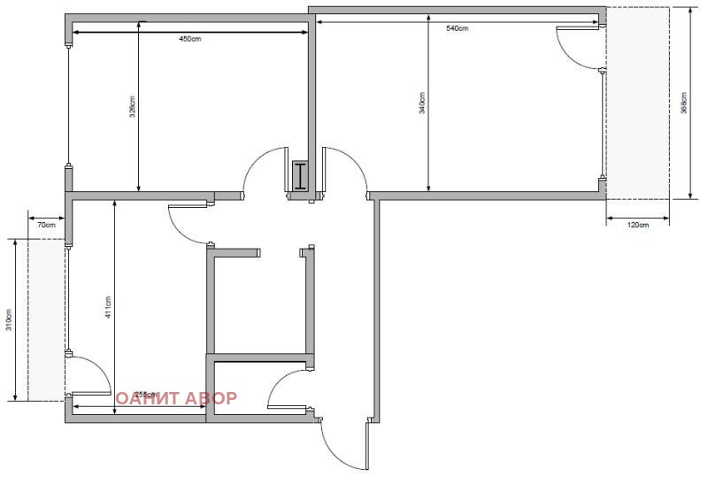
🛋️ Имотът се състои от:
🏠 Дневна с кухня
🛏️ 2 спални
🚿 2 самостоятелни тоалетни
🌅 2 тераси с гледка към парк/градина
Напълно обзaведен
🌿 Апартаментът е средно разположен, с високи тавани, външна топлоизолация и ниски енергийни разходи ⚡.
🍽️ Кухнята е напълно оборудвана миялна, фурна, керамични котлони, голям хладилник, пералня.
💧 Инсталации и ВиК изцяло нови (2018 г.), включително вертикални щрангове и тръби до всяка точка.
📺 Нови интернет и ТВ кабели, нови италиански радиатори, 5-камерна дограма готов за нанасяне!
ИМА НАЕМАТЕЛИ НА 1500 ЛЕВА ДО ЯНУАРИ 2026.
📍 Отлична локация в близост до:
🌳 Парк Гео Милев
⚽ Стадион Академик
🛍️ Търговски центрове и ресторанти
🚗 Удобен градски транспорт и контролиран достъп
✔️ Чудесен избор както за собствено ползване, така и за инвестиция с отличен потенциал за отдаване под наем.
📞 Не изпускайте това предложение обадете се сега и запишете час за оглед!
Можем да ви предложим и БЕЗПЛАТНО ПРОФЕСИОНАЛНО СЪДЕЙСТВИЕ ЗА ЖИЛИЩЕН КРЕДИТ. ПРЕФЕРЕНЦИАЛНИ УСЛОВИЯ. НАЙ-ИЗГОДНИТЕ КЪМ МОМЕНТА. Свържете се с нас за оглед още днес!
Огледи се организират и през почивните дни.
Цената е само за частни лица!
Водещ брокер- Б.Тодоров
📱 0887829311







