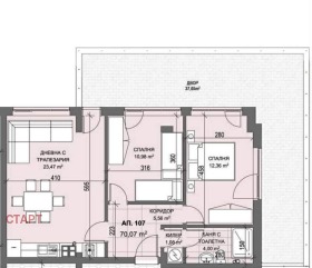
Продава се в ново завършваща се сграда пред акт 16, партерен апартамент,който разполага с две спални, всекидневна с кухненски бокс,баня с тоалетна, мокро помещение,заедно с прилежащ двор- тераса от 37,50 кв.м. Жилището е с чиста жилищна площ 70 кв.м. и е по БДС, ЕЛ инсталация с ключове контакти, ВИК на тапа , шпакловка и входна блиндирана врата.
Има възможност за закупуване на подземен гараж за 17000евро.







