'Елиз дом' предлага на вашето внимание тристаен апартамент в новострояща се жилищна сграда на реномиран строител.
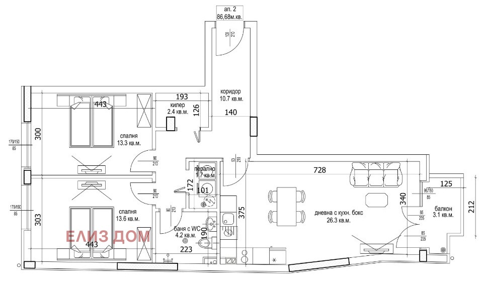
Апартаментът с чиста площ 86.68 кв.м. и се състои дневна с кухненски бокс, 2 спални, баня с тоалетна, перално, килер, коридор и тераса.
Степен на завършеност БДС (входна блиндирана врата, прозорци с висококачествена PVC дограма - 7 камерна с двойни стъклопакети ).
Сградата е с модерна визия, разполага с седем етажа, включително подземно ниво с гаражи и паркоместа. Големите прозорци осигуряват изобилие от естествена светлина в апартаментите, а просторните тераси предлагат място за отдих с гледка към зелените площи в квартала.
Общите части са луксозно изпълнени с настилка от гранитогрес, стени с декоративна мазилка, асансьор Orona.
Качествено строителство, гарантиращо дълготрайност и енергийна ефективност!
* В сградата предлагаме за продажба и други тристайни апартаменти на различни етажи.
Още предложения от 'ЕЛИЗ ДОМ' можете да разгледате на www.eliz-dom.com







