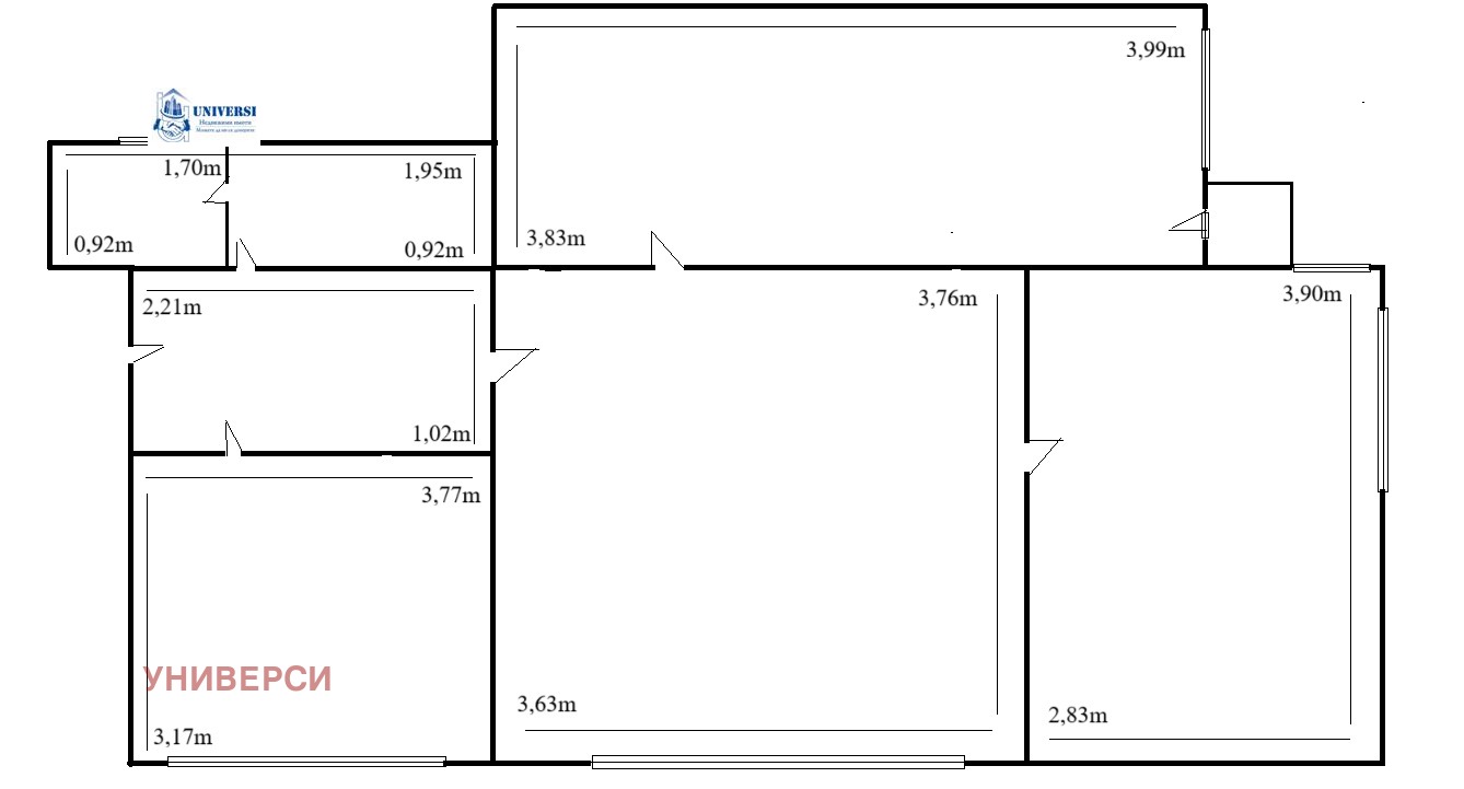
Продаваме тристаен, обазведен апартамент, в добро състояние.
Жилището е с изложение Изток / Север / Запад, поради което е изключително светло.
Светлата височина в помещенията е 2,85м2.
Отоплението и топлата вода са решени на ток.
Към апартамента има прилежащи таванско помещение, с площ от 16м2 и мазе, с площ от 8.23м2.
Сградата е със стоманобетонна конструкция и типичните за тридесетте години на миналия век общи части, и височина на таваните от 3,00 метра.
Още наши оферти можете да намерите на www.universi.bg







