Титан Пропъртис има удоволствието да Ви представи тристаен, просторен апартамент в кв. Христо Смирненски.
В близост са разположени търговски обекти, детски градини, училища, спирки на градски транспорт.
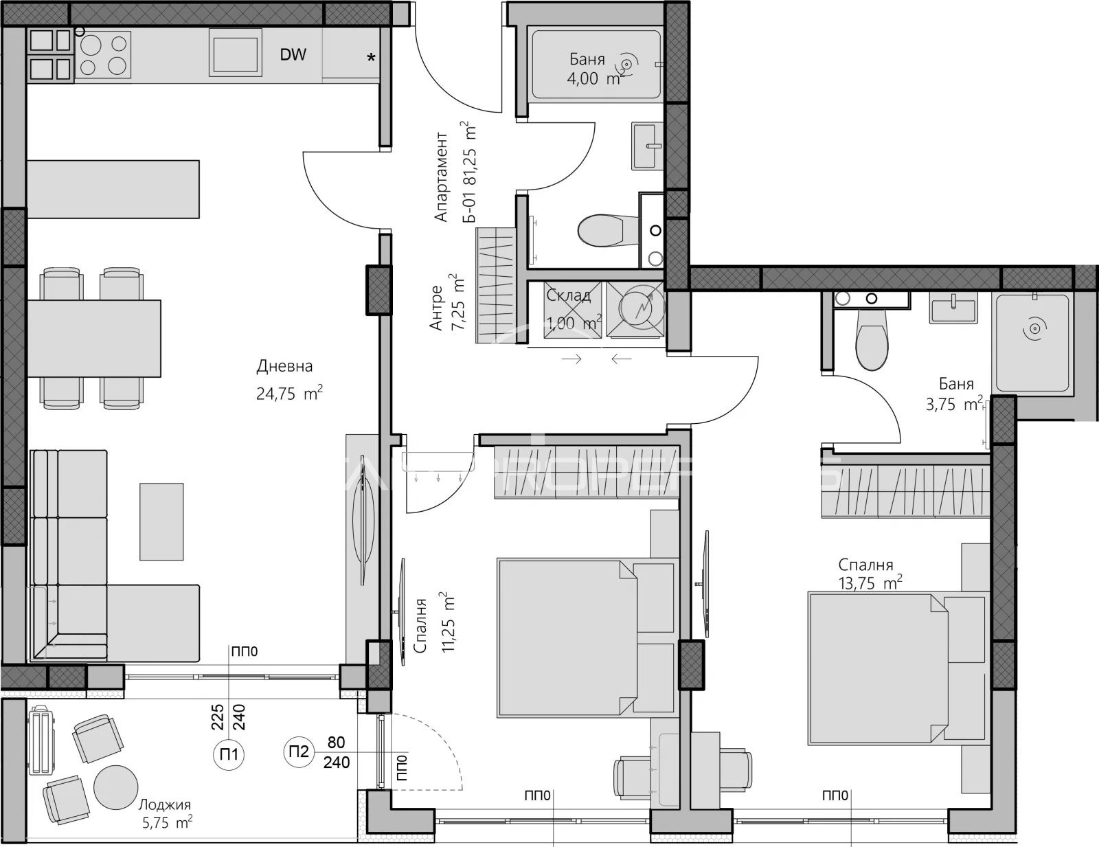
Апартаментът е ситуиран на 2-ри жилищен етаж и разполага с площ от 95 кв.м., със има следното практично разпределение: Входно антре, дневна с кухненски бокс, две спални, две бани с тоалетни, склад и тераса.
Отоплението е електричество. Сградата разполага с асансьор.
За оглед на това и други атрактивни предложения, не се колебайте да ни потърсите на посочения телефон или да ни изпратите данните си чрез формата за запитване на сайта.
Референтен номер: 1091







