Translations in other languages:
All real estate ads published on
imot.bg
have been translated into English and published on the partner site
Continue
Получихте нова обява по филтър
Промяна на цена на наблюдавана обява
стара цена
нова цена
Сайт за имоти
№1
ДОБАВИ ОБЯВА
Редакция на обява
Вход
|
Нова Регистрация
Начало
Публикуване
Търсене
Нови сгради
Агенции
Новини
Кредити
+ Още...
Моят имот
Избор на рубрика
|
Продава
|
Дава под наем
|
Купува
|
Търси да наеме
|
Заменя
|
Съквартиранти
Колко струва моят имот?
НОВО ТЪРСЕНЕ
|
КОРЕКЦИЯ НА ТЪРСЕНЕТО
|
РЕЗУЛТАТИ ОТ ТЪРСЕНЕТО
Увеличи
1
/
1
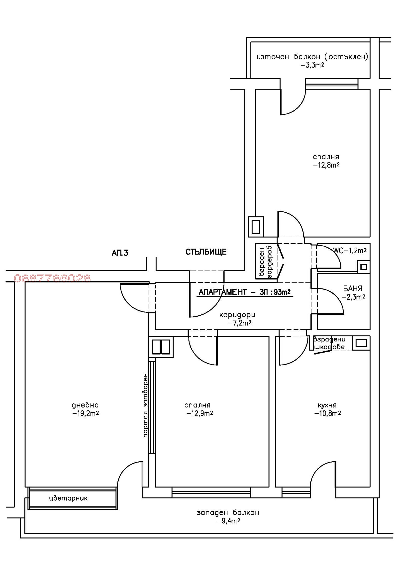
130 000 €/254 257.90 лв., Продава 3-СТАЕН, град Ямбол, Център
Площ: 93 кв.м, Частно лице, Етаж: 2-ри от 5, Газ: НЕ, ТEЦ: НЕ, Тухла, Въведен в експлоатация 1960 - 1969 г.,
Продава 3-СТАЕН
град Ямбол, Център
Виж карта
130 000 €
254 257.90 лв.
(1 398 €, 2 734.25 лв./m
2
)
Не се начислява ДДС
Коригирана в 16:04 на 18 октомври, 2025 год.
Обявата е посетена
22
пъти.
Площ:
93 m
2
Етаж:
2-ри от 5
Газ:
НЕ
ТEЦ:
НЕ
Строителство:
Тухла,
Въведен в експлоатация
1960 - 1969 г.
Напиши Бележка
Дай оценка
Съобщи за нередност
23:22 ч., 18.10.2025
Изтрий
Редактирай
Отказ
Запиши
Оценка: от 10
23:22 ч., 18.10.2025
(Ще получите SMS с ключ за верификация)
Съгласявам се с
общите условия
и
политики за защита на личните данни
Изпрати
Описание на имота:
Продава се тристаен апартамент в град Ямбол, идеален център, непреходен, с чиста площ 93кв.м. по заснемане на място, а по нотариален акт 78,20кв.м. на етаж 2 непоследен, без асансьор, с изложение запад-изток, до хотел Тунджа. Апартаментът е тухлен, с дървена дограма. Състои се от дневна, 2 спални, кухня, тоалетна и баня отделни, 2 балкона единия остъклен. Дневната, кухнята и една от спалните са със западно изложение, а другата спалня е с източно изложение. Настилки: на дневната и спалните естествен паркет, на кухнята балатум, на коридора и санитарните помещения мозайка. Покритие на стените тапети в стаите и фаянс в санитарните помещения. Частично мебелиран, след ремонт. Към апартамента има светло избено помещение 18,2 кв.м. и светло таванско помещение 10,8кв.м.
Вижте още обяви Продава, 3-СТАЕН, град Ямбол, Център
Особености:
• Тухла
За контакти:
0887786028
Частно лице
Изпрати запитване:
Вашето съобщение (до 1000 символа
):
Вашето име:
Вашия мобилен телефон:
Вашия E-mail:
Изпрати Е-mail
Съгласявам се с
общите условия
и
политики за защита на личните данни
Продава 3-СТАЕН
град Ямбол, Център
Обява: 1c176079078535816
130 000 €
254 257.90 лв.
(1 398 €, 2 734.25 лв./m
2
)
Не се начислява ДДС
0887786028
/Частно лице/
Изпрати E-mail на продавача
ЗАПАЗИ ОБЯВАТА
Сподели:
Местоположение:
град Ямбол, Център
Допълнителни данни за имотите в района и сравнение с други райони:
Търсене в АРХИВ 2013 - 2025 г.
Изберете вида на имота и района
Вид на имота:
Област / Град:
Район:
1
1-СТАЕН
2-СТАЕН
3-СТАЕН
4-СТАЕН
МНОГОСТАЕН
МЕЗОНЕТ
ОФИС
АТЕЛИЕ, ТАВАН
ЕТАЖ ОТ КЪЩА
КЪЩА
ВИЛА
МАГАЗИН
ЗАВЕДЕНИЕ
СКЛАД
ГАРАЖ, ПАРКОМЯСТО
ПРОМ. ПОМЕЩЕНИЕ
ХОТЕЛ
ПАРЦЕЛ
ЗЕМЕДЕЛСКА ЗЕМЯ
БИЗНЕС ИМОТ
град Благоевград
град Бургас
град Варна
град Велико Търново
град Видин
град Враца
град Габрово
град Добрич
град Кърджали
град Кюстендил
град Ловеч
град Монтана
град Пазарджик
град Перник
град Плевен
град Пловдив
град Разград
град Русе
град Силистра
град Сливен
град Смолян
град София
град Стара Загора
град Търговище
град Хасково
град Шумен
град Ямбол
Аврен
Боровец
Васил Левски
Военен полигон Боровец
Военна база
Възраждане
Генерал Заимов
Георги Бенковски
Граф Игнатиев
Д-р Дончев
Диана
Димитър Димов
Златен рог
Зорница
Изток
Каргон
Клокотница
Мототехника
ОУ П. Р. Славейков
Промишлена зона
Райна Княгиня
Ромска махала
Хале
Христо Ботев
Център
Яворов
2
1-СТАЕН
2-СТАЕН
3-СТАЕН
4-СТАЕН
МНОГОСТАЕН
МЕЗОНЕТ
ОФИС
АТЕЛИЕ, ТАВАН
ЕТАЖ ОТ КЪЩА
КЪЩА
ВИЛА
МАГАЗИН
ЗАВЕДЕНИЕ
СКЛАД
ГАРАЖ, ПАРКОМЯСТО
ПРОМ. ПОМЕЩЕНИЕ
ХОТЕЛ
ПАРЦЕЛ
ЗЕМЕДЕЛСКА ЗЕМЯ
БИЗНЕС ИМОТ
град Благоевград
град Бургас
град Варна
град Велико Търново
град Видин
град Враца
град Габрово
град Добрич
град Кърджали
град Кюстендил
град Ловеч
град Монтана
град Пазарджик
град Перник
град Плевен
град Пловдив
град Разград
град Русе
град Силистра
град Сливен
град Смолян
град София
град Стара Загора
град Търговище
град Хасково
град Шумен
град Ямбол
Аврен
Боровец
Васил Левски
Военен полигон Боровец
Военна база
Възраждане
Генерал Заимов
Георги Бенковски
Граф Игнатиев
Д-р Дончев
Диана
Димитър Димов
Златен рог
Зорница
Изток
Каргон
Клокотница
Мототехника
ОУ П. Р. Славейков
Промишлена зона
Райна Княгиня
Ромска махала
Хале
Христо Ботев
Център
Яворов
3
1-СТАЕН
2-СТАЕН
3-СТАЕН
4-СТАЕН
МНОГОСТАЕН
МЕЗОНЕТ
ОФИС
АТЕЛИЕ, ТАВАН
ЕТАЖ ОТ КЪЩА
КЪЩА
ВИЛА
МАГАЗИН
ЗАВЕДЕНИЕ
СКЛАД
ГАРАЖ, ПАРКОМЯСТО
ПРОМ. ПОМЕЩЕНИЕ
ХОТЕЛ
ПАРЦЕЛ
ЗЕМЕДЕЛСКА ЗЕМЯ
БИЗНЕС ИМОТ
град Благоевград
град Бургас
град Варна
град Велико Търново
град Видин
град Враца
град Габрово
град Добрич
град Кърджали
град Кюстендил
град Ловеч
град Монтана
град Пазарджик
град Перник
град Плевен
град Пловдив
град Разград
град Русе
град Силистра
град Сливен
град Смолян
град София
град Стара Загора
град Търговище
град Хасково
град Шумен
град Ямбол
Аврен
Боровец
Васил Левски
Военен полигон Боровец
Военна база
Възраждане
Генерал Заимов
Георги Бенковски
Граф Игнатиев
Д-р Дончев
Диана
Димитър Димов
Златен рог
Зорница
Изток
Каргон
Клокотница
Мототехника
ОУ П. Р. Славейков
Промишлена зона
Райна Княгиня
Ромска махала
Хале
Христо Ботев
Център
Яворов
4
1-СТАЕН
2-СТАЕН
3-СТАЕН
4-СТАЕН
МНОГОСТАЕН
МЕЗОНЕТ
ОФИС
АТЕЛИЕ, ТАВАН
ЕТАЖ ОТ КЪЩА
КЪЩА
ВИЛА
МАГАЗИН
ЗАВЕДЕНИЕ
СКЛАД
ГАРАЖ, ПАРКОМЯСТО
ПРОМ. ПОМЕЩЕНИЕ
ХОТЕЛ
ПАРЦЕЛ
ЗЕМЕДЕЛСКА ЗЕМЯ
БИЗНЕС ИМОТ
град Благоевград
град Бургас
град Варна
град Велико Търново
град Видин
град Враца
град Габрово
град Добрич
град Кърджали
град Кюстендил
град Ловеч
град Монтана
град Пазарджик
град Перник
град Плевен
град Пловдив
град Разград
град Русе
град Силистра
град Сливен
град Смолян
град София
град Стара Загора
град Търговище
град Хасково
град Шумен
град Ямбол
Аврен
Боровец
Васил Левски
Военен полигон Боровец
Военна база
Възраждане
Генерал Заимов
Георги Бенковски
Граф Игнатиев
Д-р Дончев
Диана
Димитър Димов
Златен рог
Зорница
Изток
Каргон
Клокотница
Мототехника
ОУ П. Р. Славейков
Промишлена зона
Райна Княгиня
Ромска махала
Хале
Христо Ботев
Център
Яворов
Откажи
OK
Цена на имота
Цена на кв.м.
Наем на имота
Цена/Год.наем
Брой оферти
Брой търсения
Разглеждания
1 месец
1 година
3 години
21 години
и 10 месеца
Добави/редактирай
вид имот и район
*Средните цени са определени чрез
медиана стойност
.
Виж още
имоти от Ямбол
или
още Тристайни Апартаменти в Ямбол
Още обяви в imot.bg
Продава 3-СТАЕН
126 698 €
247 799.75 лв.
(97 кв.м)
град Ямбол Център
Продава 3-СТАЕН
150 900 €
295 134.75 лв.
(130 кв.м)
град Ямбол Център
Продава 3-СТАЕН
Цена при запитване
(90 кв.м)
град Ямбол Център
Продава 3-СТАЕН
126 698 €
247 799.75 лв.
(97 кв.м)
град Ямбол Център
КОНТАКТИ
|
SMS КОДОВЕ
|
СТАТИСТИКА
|
ПОМОЩ
|
ОБЩИ УСЛОВИЯ
|
РЕКЛАМА
|
ТОП ОФЕРТА
|
Въпроси и предложения към imot.bg
Резон Медия
|
Имоти
|
Автомобили
|
Работа
|
Новини
|
Обяви
|
Преводи и легализация
2002-2025 ® Copyright imot.bg
Следвайте ни в: