В близост са разположени търговски обекти, спирки на градски транспорт, детски градини, училища, медицински заведения, както и зони за отдих.
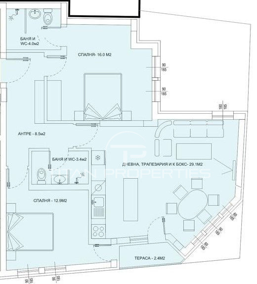
Апартаментът е ситуиран на 2-ри жилищен етаж и разполага с площ от 115 кв.м., разгърната по следния практичен начин: входно антре, хол с кухненски бокс, две спални, две бани с тоалетни и тераса.
Има възможност за закупуване на подземно паркомясто на стойност 29 000 евро.
За оглед на това и други атрактивни предложения, не се колебайте да ни потърсите на посочения телефон или да ни изпратите данните си чрез формата за запитване на сайта.
Реф. номер: 50805
Виж всички обяви в titanplovdiv.bazar.bg или тук
        
       
         
         
         
         
         
         
         
         
         
         
         
             
             
             
             
             
             
             
             
             
             
            






