СХЕМА НА ПЛАЩАНЕ 15% сега 85% на АКТ 16
Имотен Център ви предлага прекрасен южен апартамент в Горна баня .
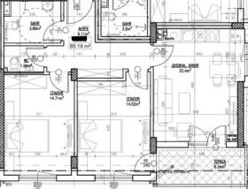
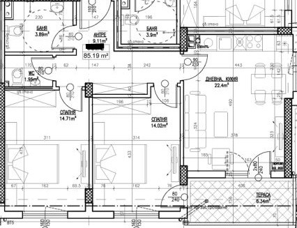
Разпределение : входно антре , баня с тоалетна и отделна тоалетна , две спални , хол с кухня и тераса.
Чиста площ - 85.15 квадрата
Изложение - Юг/изток
Цената с ДДС е 239 016 евро
За повече инфо и огледи на телефона.
Водещ брокер - Стефан Мишев







