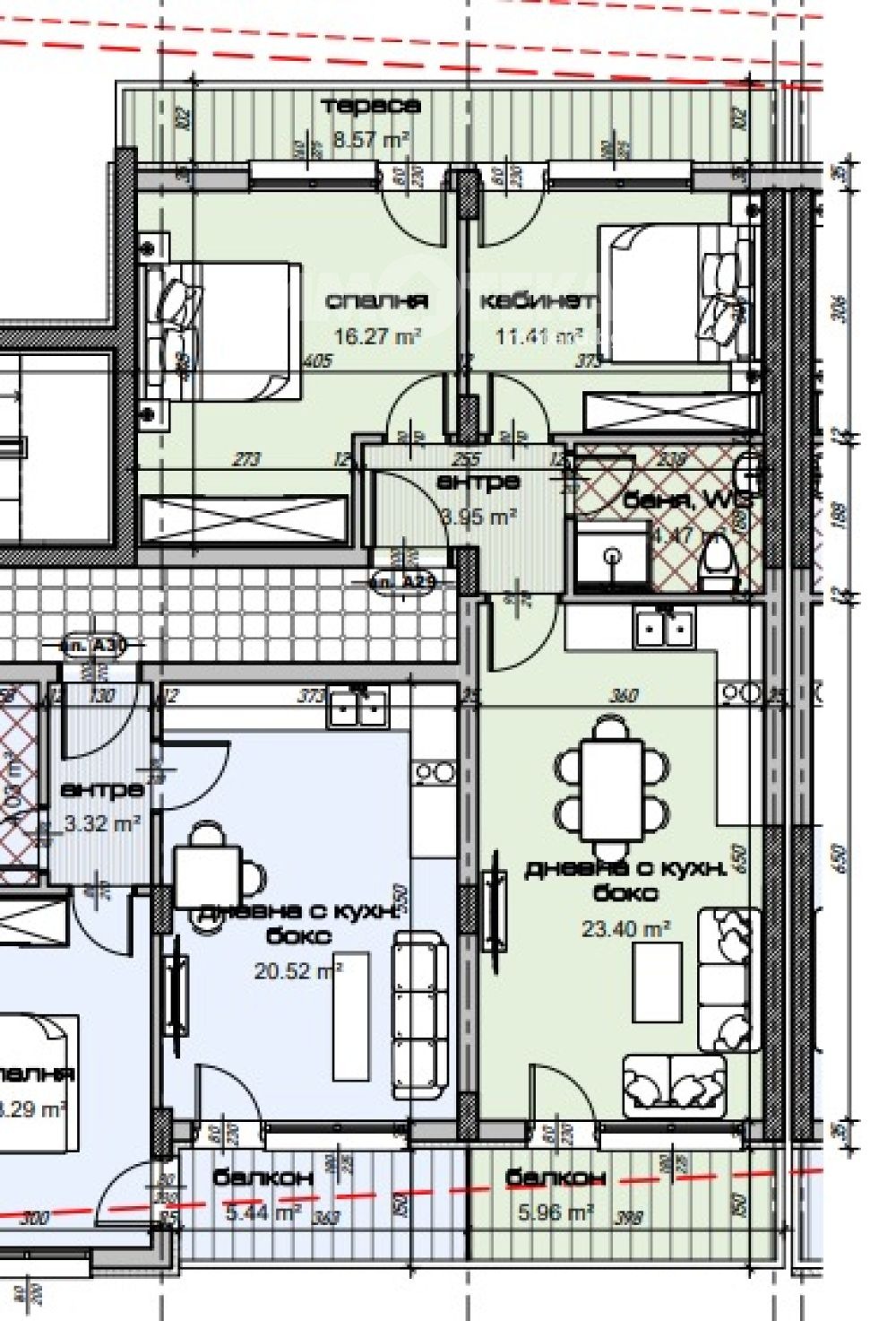
Разпределението е както следва :
- Слънчева дневна на юг,
- Родителска спалня,
- Детска стая
- Две тераси тип лоджия,
- Баня с тоалет,
- Килер/дрешник.
Квартал 'Изгрев', над бул.'Христо Смирненски'.
Многофункционална жилищна сграда в кв. ИЗГРЕВ, р-н Приморски, гр. Варна.
Сградата е разположена по начин, осигуряващ максимален фронт за благоприятно разположение на жилищата спрямо географските посоки с преобладаващо югозападно изложение, като са предвидени и жилища с изложение югоизток.
Осигурени са достатъчен брой паркоместа общо 110 на брой и благоприятно ландшафтно околосградно пространство.
Състои се от общо 11 етажa, разделени на два входа, на които са разположени общо 105 апартаментa и едно ателие , и общо 110 паркоместа разположени в двор и подземен гараж. За любителите на велосипедите са предвидени и 57 велосипедни паркоместа, осигурени в специално помещение за велосипеди.
Апартаментите се предлагат завършени по БДС, като предлагаме опция за завършването им до ключ.
Обади се сега и цитирай този код 671814
Виж всички обяви в imotekavarna.bazar.bg или тук







