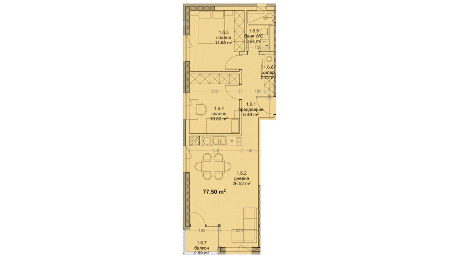
ЕРА Вива продава тристаен апартамент в бутикова сграда в кв. Трошево, гр. Варна. Имотът е със застроена площ от 77.50 кв.м. /93.20 кв.м. с общите части/ и е разположен на втори етаж. Жилището включва просторна дневна /26.5 кв.м./, две спални /10.8 кв.м. и 11.8 кв.м./, баня с тоалетна /3.6 кв.м./ и балкон /2.9 кв.м./ Апартаментът е с южно и източно изложение, което гарантира светлина и уют през целия ден. Разпределението е функционално, с правилни форми, осигуряващи лесно и ефективно интериорно проектиране. Предлагат се гъвкави схеми на плащане, а срокът за завършване на строителството е до 30 месеца. Има възможност за избор между двустайни и тристайни апартаменти, както и за обединяване на два съседни имота в по-просторно жилище.
Бутикова, шестетажна сграда, част от съвременен жилищен комплекс с модерна архитектура и функционално разпределение. Всяко жилище е проектирано с внимание към детайла, съобразено със съвременните изисквания за комфорт, светлина и удобство. За удобството на живущите са предвидени подземни и надземни паркоместа, велопаркоместа и контролиран достъп, а строителството ще бъде изпълнено с висококачествени материали.
Кварталът предлага отлична инфраструктура, спокойна жилищна среда и удобен достъп до всички точки на града. В близост се намират търговски центрове, магазини, заведения, училища, детски градини и спирки на градския транспорт. Районът съчетава динамиката на градския живот с уюта на жилищна зона, което го прави подходящ както за живеене, така и за инвестиция с потенциал за висока доходност.
Не изпускайте възможността да станете собственик на този прекрасен имот свържете се с нас за повече информация и оглед.
---
Всеки клиент на ЕРА получава БЕЗПЛАТНО кредитно консултиране от доверения лицензиран кредитен посредник CreditERA, който работи с най-добрите банки на пазара.
Оферта 1009658







