АКТ16!!!
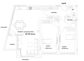
Явлена Изток продава тристаен апартамент в сграда разположена на границата между кварталите Дианабад и Студентски град. Локация на тиха и спокойна улица в непосредствена близост до магазин Фантастико и разнообразен градски транспорт. На десет минути пешеходно разстояние от метростанция Г.М. Димитров. Апартаментът е със ЗП 114 кв.м (136 кв.м с общи части), на пети етаж в шест етажна сграда и следното разпределение на помещенията: входно антре, просторна дневна с кухненски бокс и трапезария 44 кв.м. с излаз към тераса и панорама към Витоша планина, две спални помещения 19 кв.м и 14 кв.м , и две санитарни помещения. Висок клас строителство с луксозни общи части и съвременна архитектура. Дограма REHAU с троен стъклопакет. Отоплението е на ТЕЦ като в стаите има изводи за климатици. Изложение югозапад и югоизток. Възможност наем на паркомясто и гараж.







