ДИРЕКТНО ОТ ИНВЕСТИТОР. Имот с 30 кв.м собствен двор? Имаш го! Място, където децата растат свободни, а родителите спокойни.Проектът съчетава модерна архитектура, висококачествено строителство и стратегическа локация сред природа и чист въздух.
Идеален за семейства с деца-живеете в града, но децата Ви растат сред зеленина и тишина.
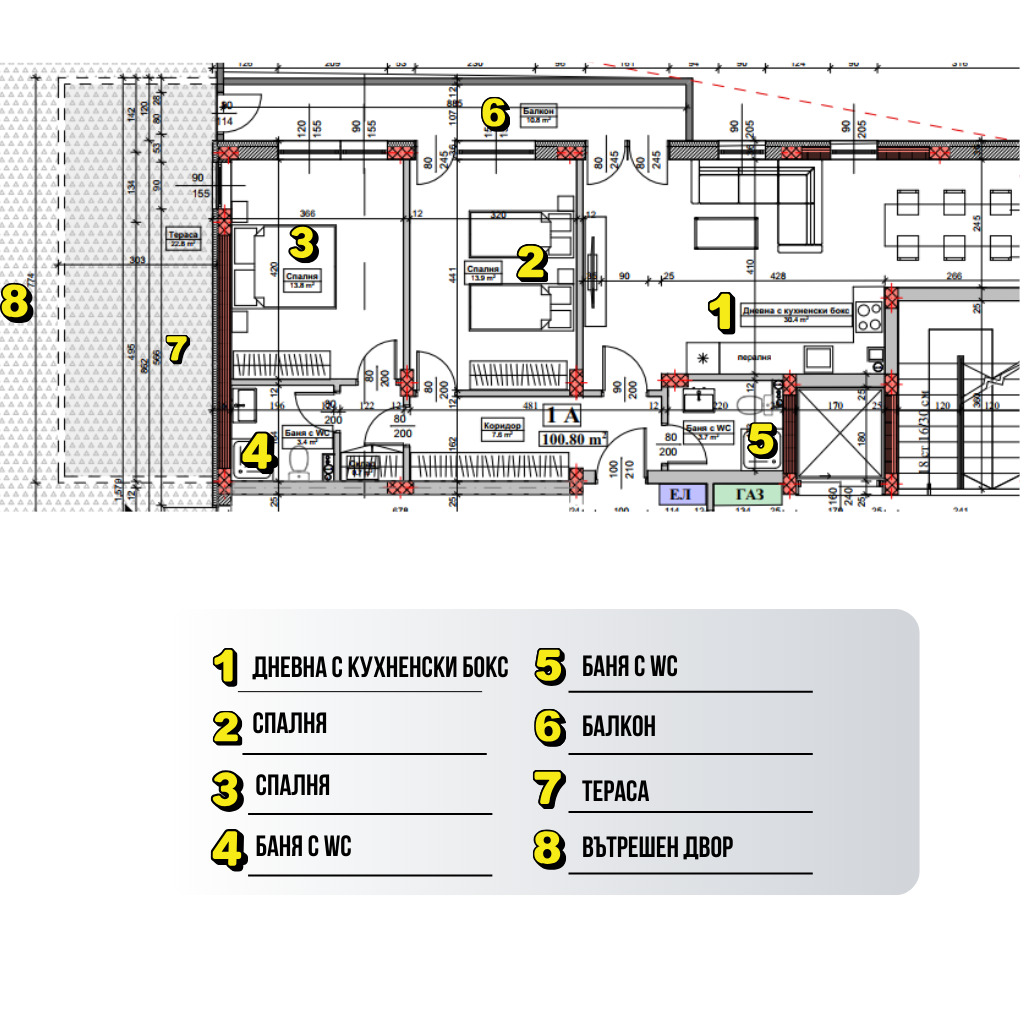
Описание на имота:
Тип имот: Тристаен апартамент
Етаж: 1
Изложение: юг / изток / север
Площ с общи части: 116,57 кв. м.
Двор: 25,5 кв. м.
Качество, което се вижда и се усеща от входа до последния детайл.
▪️Висок клас строителство
▪️7-камерна PVC дограма Schüco с троен стъклопект
▪️Baumit топлоизолация - 12 см.
▪️Шумоизолация между етажи и апартаменти
▪️Луксозно изпълнени общи части
▪️Фасади с декоративни елементи
▪️Газова инсталация във всеки апартамент
📞 За повече информация и огледи:
Мирослава Костадинова
тел. : 0885900904







