Тристаен апартамент в новострояща се сграда с висок клас изпълнение
✔Основни параметри:
Локация: Манастирски ливади Изток
Етаж: 4 от 6
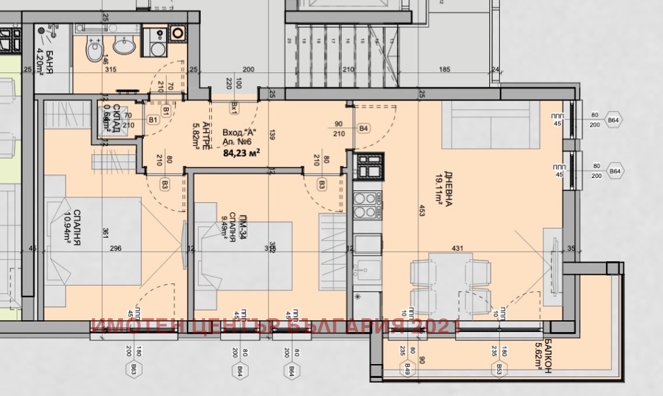
Чиста площ: 69.97 м²
Обща площ с общи части: 85.54 м²
Изложение: Изток / Запад светлина през целия ден
Етап: Начален възможност за избор на довършителни решения
✔Функционално и стилно разпределение:
Впечатляваща дневна с кухня и трапезария 19.11 м² идеална за уютни семейни вечери и посрещане на гости
Две големи спални:
Спалня 1 9.49 м²
Спалня 2 10.49 м²
Три санитарни помещения:
Баня 1 4.20 м²
Складово помещение 0.06 м² рядко срещано удобство
Просторно антре 5.28 м²
Балкона 5.62 м² (излаз от дневната)
✔ Предимства на имота:
Дом с усещане за къща изключително голяма площ за апартамент
Отлично разпределение без преходни стаи, с възможност за усвояване на всеки метър
Простор и светлина двойно изложение Изток / Запад
Подходящ за семейства, хора с динамичен стил на живот, или за инвестиция от висок клас
Възможност за индивидуално завършване по избор на клиента
✔ За сградата:
Висококачествено строителство от доказан инвеститор
Модерна архитектура и прецизно изпълнение
Опция за закупуване на паркомясто или гараж
Гъвкава схема на плащане, съобразена с етапите на строителство
Предлагаме още двустайни, тристайни, четиристаен, паркоместа и гаражи.
✔Локация Манастирски ливади Изток:
Отличен достъп до бул. България, Околовръстен път и централната градска част
В близост до супермаркети, градски транспорт, бъдещо метро, училища и детски градини
Спокойна среда, съчетана с удобствата на града
📞 Подробности при запитване
Не пропускайте възможността да притежавате истински просторен дом в една от най-перспективните зони на София.
👉 Свържете се с нас: Максим Дочев







