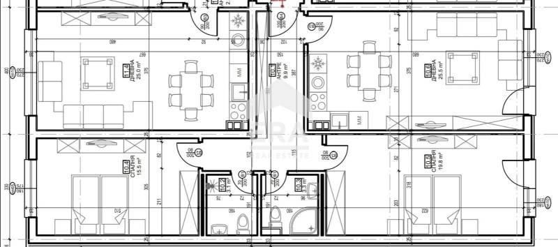
Имотът е с функционално разпределение, просторни помещения с правилни форми на партерен етаж с площ от 92,50 кв.м.
с достъп до външно дворно пространство от 17 кв.м.
Разпределение: дневна 25,00 кв.м., две спални 19,80 кв.м. и 15,50 кв.м., и две санитарни помещения.
В цената е включено подземно паркомясто.
Изложение: юг/запад
Сградата е с предстоящо Разрешение за ползване януари 2023 г.
Отоплението в сградата е на ГАЗ.
Оферта 3200018
Виж всички обяви в eravalena.bazar.bg или тук
        
       
         
         
         
         
         
         
         
         
             
             
             
             
             
             
             
            






