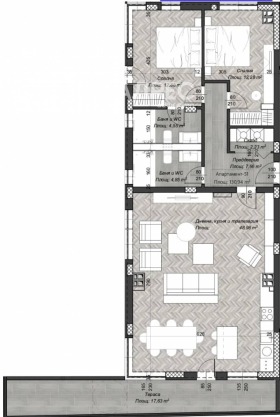
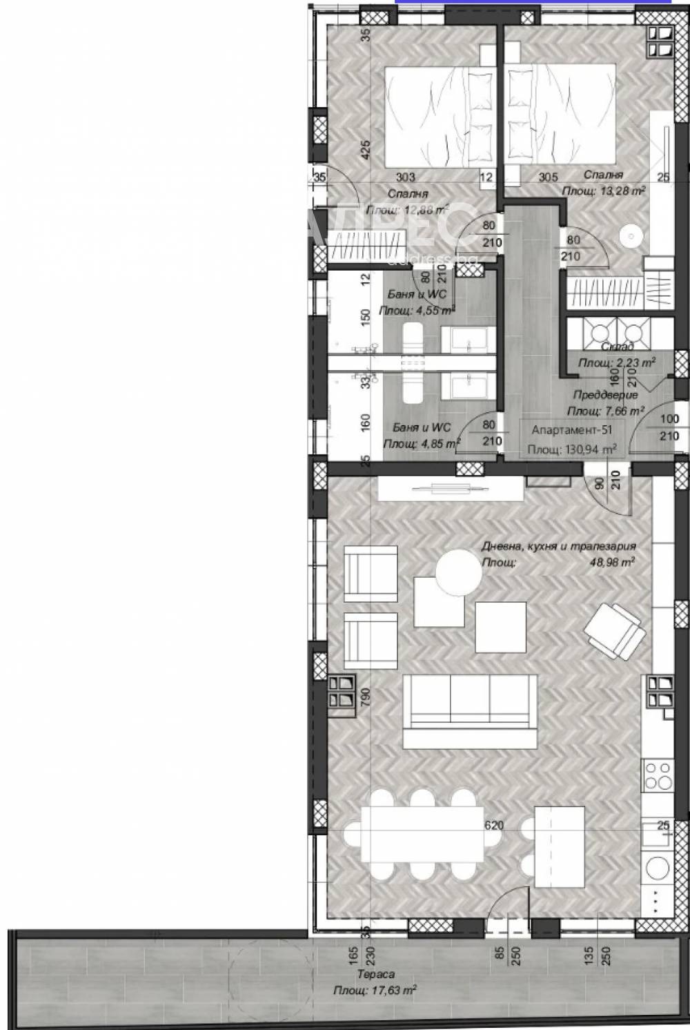
Тристаен апартамент на две изложения - изток/запад, състоящ се от антре, просторна дневна с кухненски бокс и трапезария, две спални, с възможност за обособяване на трета спалня, складово помещение, две бани с тоалетна и тераса плюс покривно пространство с размер от 88 кв.м. Жилището е разположено в елегантна и престижна сграда в центъра на София, съчетаваща модерна архитектура с изчистен дизайн и впечатляващо фасадно остъкляване, което осигурява простор и светлина. Намира се на комуникативно място с удобен достъп до подземен и надземен паркинг, в непосредствена близост до ключови транспортни връзки и удобства.
Сградата се намира на много комуникативно място - в близост до автобусни спирки и две метростанции - Константин Величков и Опълченска, множество медицински центрове, детски градини и удобства в близост до сградата. На кратко пешеходно разстояние от МОЛ София.
Фасадата е с изчистени форми, като са използвани фасадни декоративни елементи, които подчертават обемите. Конструкцията на сградата е монолитна стоманобетонова с външни зидове от 25см тухли + 10см топлоизолация и преградни стени от 25 см.
Предвидена е богато озеленена общодостъпна покривна тераса в акцентната зона на сградата зоната на пробива.
Фасадното остъкляване осигурява максимално естествено осветление във всяко жилищно помещение. Немски алуминиеви профил с троен стъклопакет Sch?co.
Зидария от керамични тухли с дебелина 25см и 12см от Wienerberger.
Входните пространства са маркирани с декоративна рамка с облицовка от камък.
Партерът е с финиш от еталбонд, който ествствено преминава през декоративните слънцезащитни елементи във височина до декоративния профил, който рамкира обществената зона.
Отлична локация.
Функционални и светли жилища.
Луксозни общи части.
Озеленена покривна градина.
Сигурност контрол на достъпа.
Обади се сега и цитирай този код 670600







