Агенция Хоум Плейс Ви предлага за продажба тристаен апартамент пред АКТ 15 в района на Възраждане 1
-Обща площ 98.10
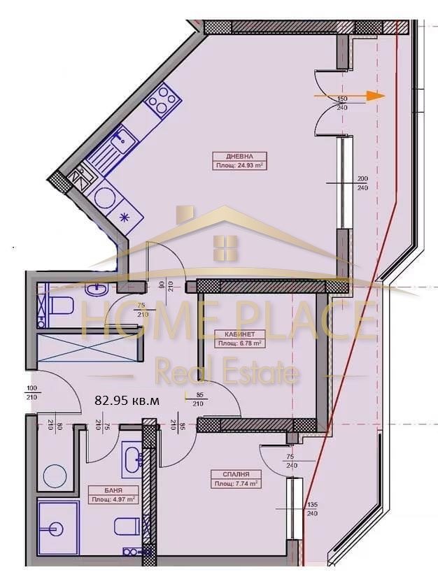
-Чиста площ 82.95
-Етаж 13 с асансьор
-Изложение - изто
-Вид на завършеност на жилището: БДС стандарт
Разпределение: Дневна с кухненски бокс,спалня, кабинет, баня с тоалетна, отделно тоалетна, перално, коридор и тераса.
Сградата ще бъде въведена в експлоатация 2026г. В строителството на сградата са заложени качествени материали.
Предлагаме и още три двустайни и един тристаен апартамент в сградата.
В близост до главни пътни артерии, автобусни спирки на градския транспорт, магазини, голям търговски център, професионални гимназии и училища, детски градини и ясли.
За повече информация се свържете с нас на посочения телефон и цитирайте код:
КОД НА ОБЯВА: 29862
HOME PLACE - Ние работим за Вас!







