Агенция Абела предлага за продажба апартамент в нова сграда с Акт 16, разположена в един от най-предпочитаните райони на София ж.к. Дружба 2. Имотът съчетава качествено строителство, функционално разпределение и отлична локация.
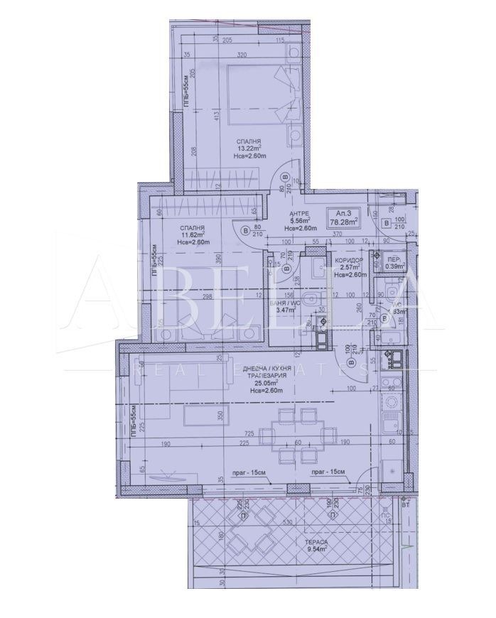
Тип имот: Тристаен апартамент
Площ: 93.90 кв.м Двор: 96.42 кв.м Етаж: 1 от 7
Изложение: юг / запад / север
Разпределение: дневна с кухненски бокс, 2 спални, баня с тоалетна, тоалетна, мокро помещение и тераса
Състояние: ново строителство, с висококачествени материали и модерна визия
Отопление: ТЕЦ / климатик
Сграда: с контролиран достъп, асансьор и отлично поддържани общи части Допълнителни
удобства: възможност за паркомясто или гараж, озеленени площи и тиха улица Локация: Имотът се намира в непосредствена близост до метростанция, спирки на градски транспорт, супермаркети, училища и детски градини. Бърз достъп до бул. Цариградско шосе и Летище София.
За това и други наши предложения посетете сайта ни: https://abella.bg/
Виж всички обяви в abela.bazar.bg или тук







