БЕЗ КОМИСИОНА!
Представяме тристаен апартамент в нов комплекс, в кв. 'Беломорски'. Удобна локация близо до автобусна спирка на градския транспорт.
Строителството стартира в края на 2025 г., достигане на груб строеж до края на 2026 г., а Акт 16 се очаква в средата на 2028 г.
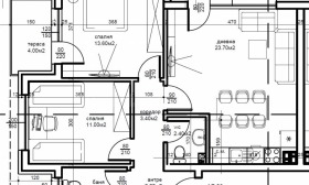
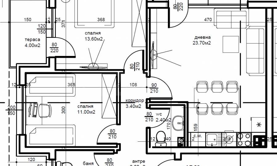
Параметри на имота
Жилището с обща площ от 97,22 кв.м е разположено на 2-ри етаж от 4.
Комплексът се състои от 5 самостоятелни жилищни сгради, всяка с партер и 3 жилищни етажа с асансьор. Предлага различни по-големина едностайни, двустайни и тристайни апартаменти. Пространството около сградите е решено с паркоместа и озеленяване.
Имотите се предават в степен на завършеност по БДС, на шпакловка и замазка.
Технически характеристики на сградите:
конструкция - монолитна стоманобетонна конструкция с външни 25 см тухлени стени с ефективна топлоизолация;
външна топлоизолация - 10 см;
PVС дограма;
входни врати - блиндирани, пожароустойчиви;
вътрешни стени и таван - гипсова мазилка, под - циментова замазка;
ВиК инсталации - водопровод - полипропиленови тръби, канализация - PVC тръби;
ел. инсталация - трипроводна, хоризонтална и вертикална разводка с монтирано апартаментно табло;
слаботокови инсталации - изградено окабеляване за кабелна телевизия, телефон, интернет и домофонна инсталация;
отоплителна инсталация - изградени трасета за климатици;
висококачествени електрически асансьори с безмашинни помещения и луксозни кабини;
общи части - напълно завършени по проект;
плоски покриви с хидроизолация;
фасада - завършена с топлоизолация и полимерна мазилка;
тераса - настилка гранитогрес;
стълбище - завършено с настилка и алуминиев парапет.
Схема на плащане:
резервация - 1000 eвро;
при подписване на предварителен договор - 30%;
преди Акт 14 (на втора плоча) - 20%;
Aкт 14 - 20%;
след Aкт 14 (три месеца след Акт 14) - 20%;
Акт 15 - ...
За повече информация свържете се с нас и цитирайте референтния номер на имота. Моля, кажете, че сте видeли обявата в този сайт.
Референтен номер: PLV-134993
Тел: 0887 180 235, 032 333 959
Отговорен брокер:Мариана Стефанова
Без комисиона от купувача
Виж всички обяви в suprimmoplovdiv.bazar.bg или тук







