🏡 Smart Investments представя изключителна възможност за покупка на ново строителство в район Кабакум!
Възползвайте се от промоционалните цени преди старта на строителството и осигурете своя мечтан дом с:
✨ Красива морска панорама
🚗 Асфалтов достъп и удобна локация
📍 Възлова позиция в един от най-предпочитаните райони край Варна
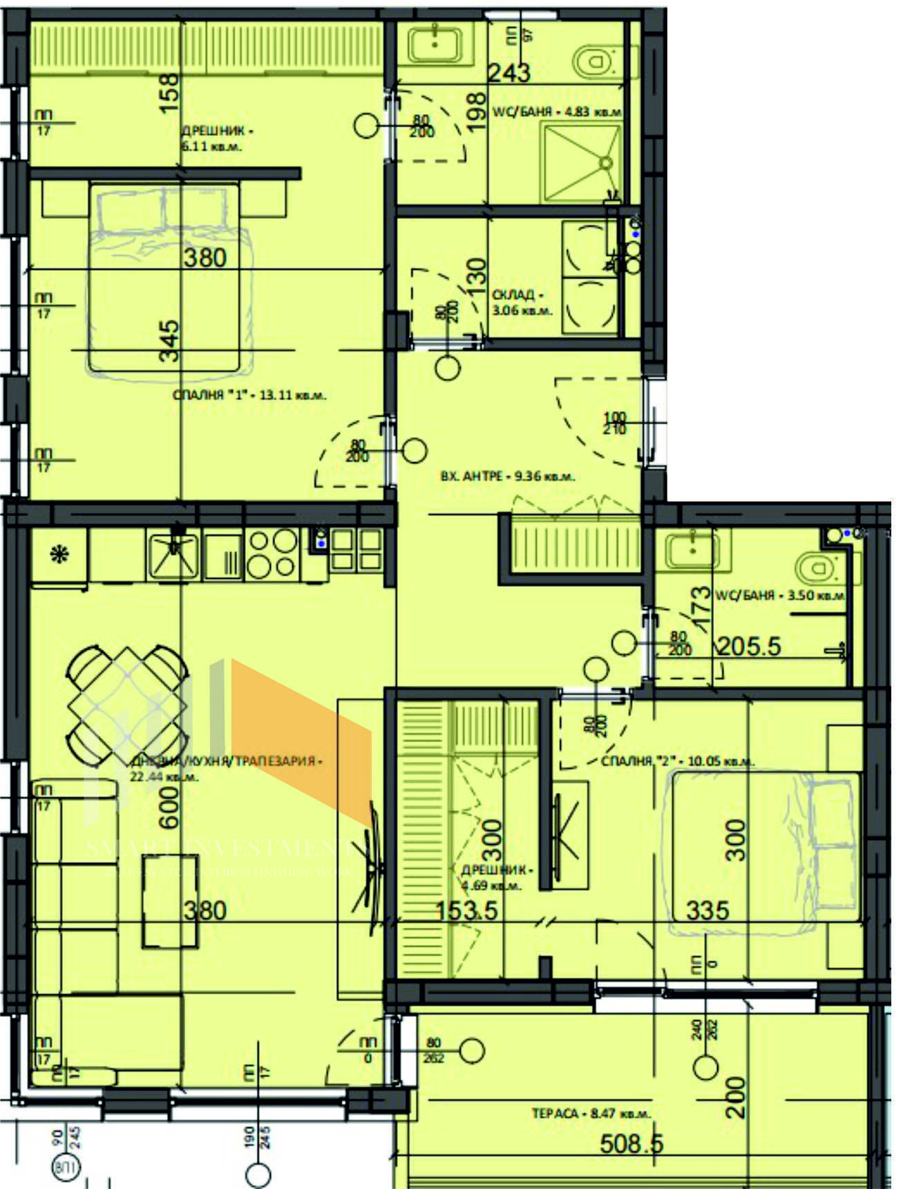
В сградата се предлагат двустайни и тристайни апартаменти, подходящи както за живеене, така и за инвестиция.
📞 Свържете се с нас за повече информация: 0893 599 068







