Представяме Ви нова модерна и луксозна сграда, която предстои да бъде изградена в един от най-предпочитаните райони на гр. Варна кв. Левски. Проектът е дело на доказан строител с безупречна репутация и множество завършени обекти с високо качество на изпълнение.
Сградата ще бъде реализирана с висококачествени материали, съвременна архитектурна визия и внимание към всеки детайл, гарантиращи дълготрайност, комфорт и стил.
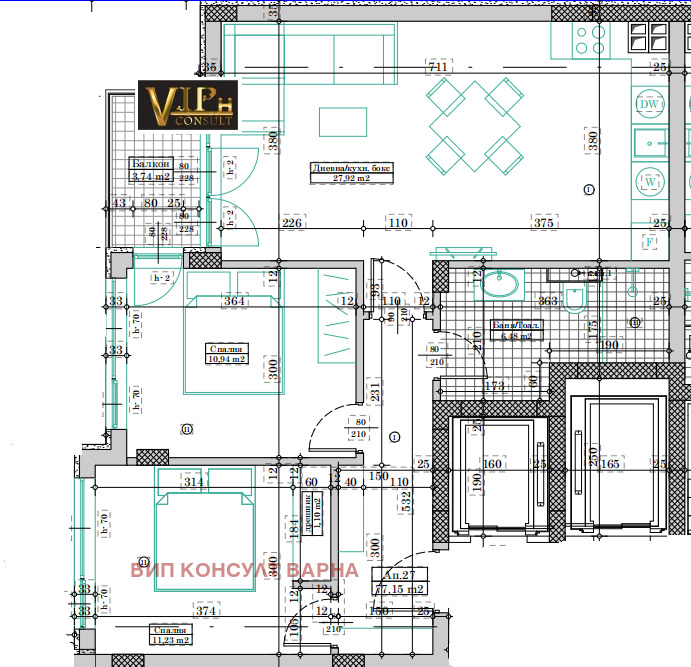
Предлаганият имот се състои от:
Просторна дневна с кухненски бокс
две спални
Баня с тоалетна
Тераса с достъп от дневната и едната спалня
Коридор с функционално разпределение
✅ В цената са включени интериорни врати, което подчертава високия стандарт на завършеност.
🚗 Паркирането е напълно осигурено чрез две подземни нива с гаражи и паркоместа, както и открити паркоместа в дворното пространство удобно и практично решение за всеки обитател.
Локацията предлага отлична инфраструктура, бърз достъп до главни булеварди, университети, търговски обекти и градски транспорт.
✨ Перфектен избор както за личен дом, така и за инвестиция с висока възвращаемост.
💰 Възможност за удобно разсрочено плащане директно към инвеститора и без дължима комисиона от купувача.
Виж всички обяви в vipconsultvarna.bazar.bg или тук







